2 1300 8th Avenue, Regina, Saskatchewan S4R 1E2

Listed for:
$16
0 beds
0 baths
Listed 50 days ago
Warehouse for rent: 2 1300 8th Avenue, Regina, Saskatchewan S4R 1E2

View all 8 photos

About

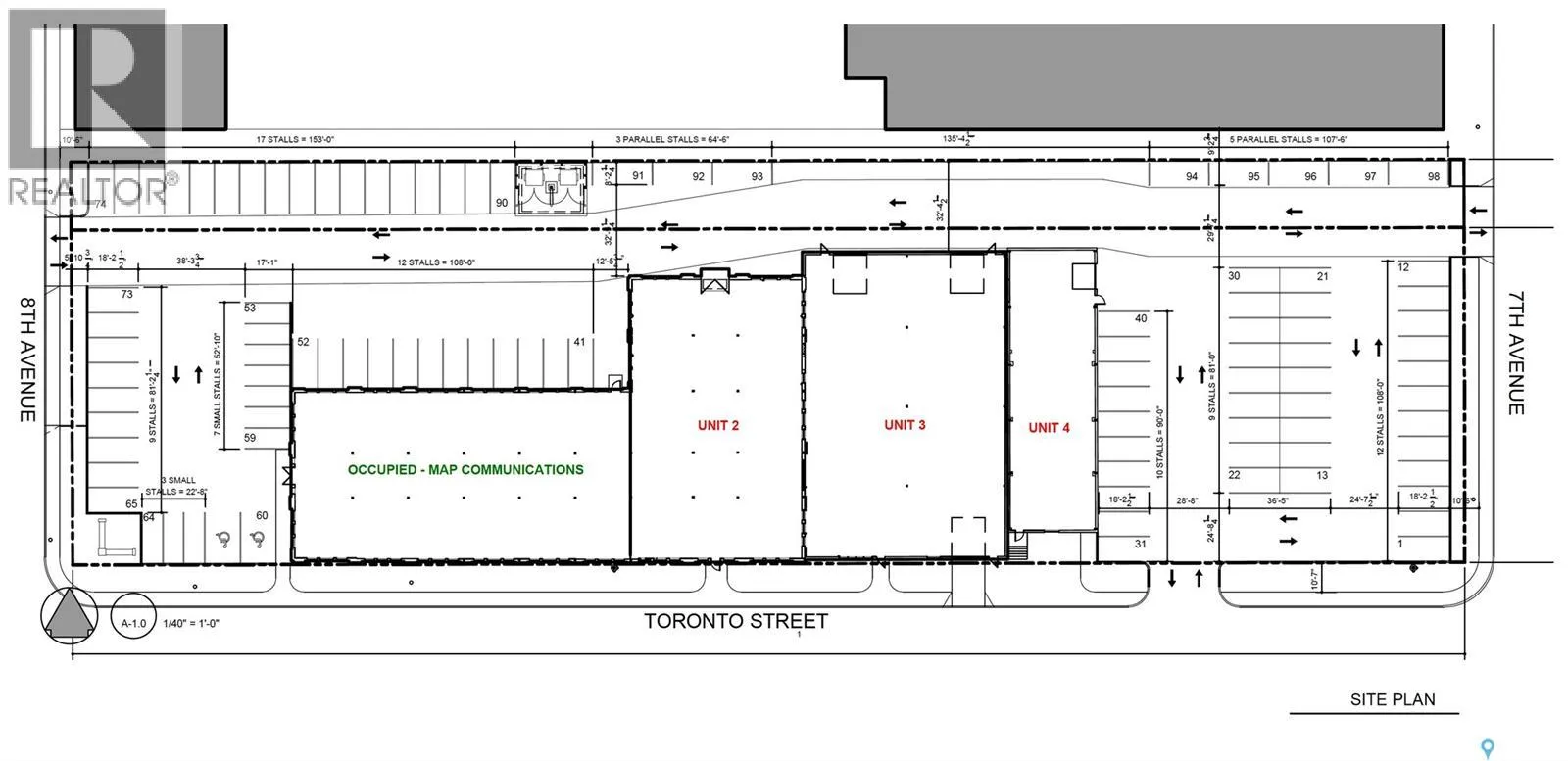
This historic and character-filled building (formerly Signal Industries) offers flexible spaces for lease ranging from 6,400 sqft up to 17,620 sqft. (when combined with two adjacent units to the north). This particular space features an atrium-like feel with abundant natural light and high ceilings. Its unique and rustic character-rich environment makes it suitable for a showroom, warehouse, storage, office, or creative studio. Currently the space is wide open with a loading dock at the west elevation. Up to 14 stalls available and more if combined with adjacent spaces. (id:27476)

Property Highlights

MLS® Number
SK028186
Type
Industrial
Ownership Type
Leasehold

Building

Building Type
Warehouse
Square Footage
6400 sqft
Fireplace Present
No
Basement Type
Basement Features
Building Heating Type
Other
Heating Fuel
Building Cooling Type

Location

Learn more about this property
Listing provided by:
RE/MAX Crown Real Estate
MLS® number:
SK028186
Agent:
John Chung
*Indicates required field
Name is required
Email is required
Please enter a valid phone number (e.g., 416-111-1111).