3 1300 8th Avenue, Regina, Saskatchewan S4R 1E2

Listed for:
$16
0 beds
0 baths
Listed 39 days ago
Warehouse for rent: 3 1300 8th Avenue, Regina, Saskatchewan S4R 1E2

View all 7 photos

About

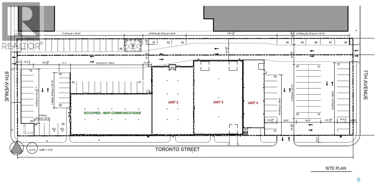
Historic and character-filled building (formerly Signal Industries) offers flexible spaces for lease ranging from 7,920 sqft up to 17,620 sqft. (when combined with two adjacent spaces to each side). This particular space is a wide open warehouse set up, ideal for storage or light industrial warehouse type of use with high ceilings and bright lights throughout. There are 2 bathrooms, office area, and a reception/customer receiving/pick up area. It also features 3 overhead doors and a loading dock. Up to 17 parking stalls(negotiable) and more if combined with adjacent spaces. (id:27476)

Property Highlights

MLS® Number
SK028183
Type
Industrial
Ownership Type
Leasehold

Building

Building Type
Warehouse
Square Footage
7920 sqft
Fireplace Present
No
Basement Type
Basement Features
Building Heating Type
Other
Heating Fuel
Building Cooling Type

Location

Learn more about this property
Listing provided by:
RE/MAX Crown Real Estate
MLS® number:
SK028183
Agent:
John Chung
*Indicates required field
Name is required
Email is required
Please enter a valid phone number (e.g., 416-111-1111).