1817 Osler Street, Regina, Saskatchewan S4P 1W1

Listed for:
$1,495
0 beds
0 baths
Listed 15 days ago
Offices for rent: 1817 Osler Street, Regina, Saskatchewan S4P 1W1

View all 23 photos

About

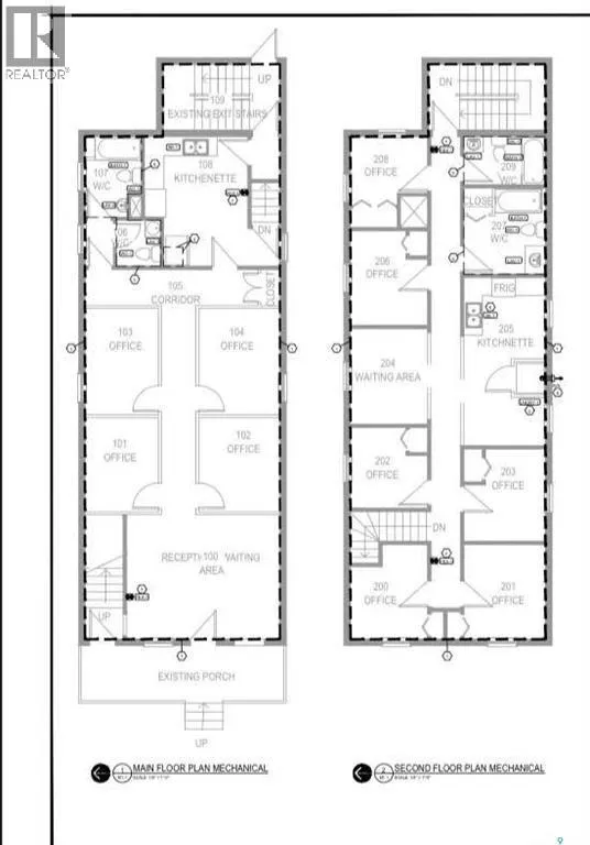
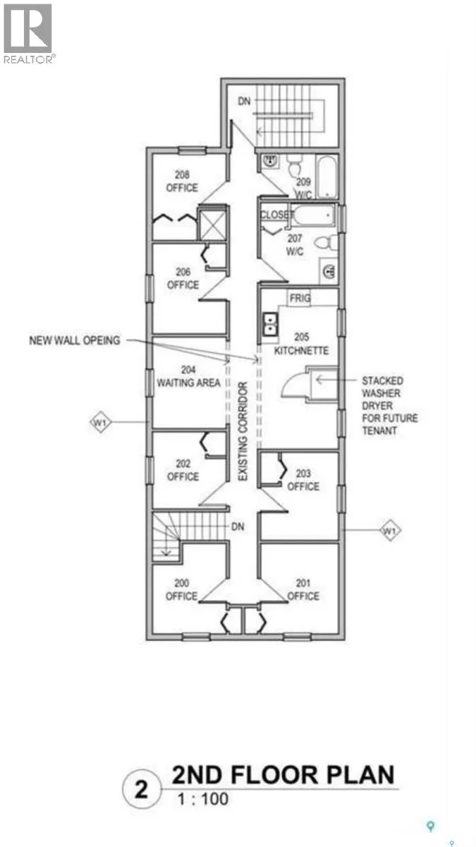
PLAN: OLD33 BLOCK: 302 LOT:5 Newly renovated multi-unit building at 1817 Osler St, perfect for offices, studios, or small businesses. Second floor unit is available for rent. The second floor features 6 office room with 2 washrooms, waiting area, laundry area and a shared kitchen/lunch area. This unit includes 2 parking spots, with additional street parking in front. Conveniently located near to downtown, local amenities, restaurants, and public transit. (id:27476)

Property Highlights

MLS® Number
SK030683
Type
Office
Ownership Type
Freehold
Land Size
3128 sqft

Building

Building Type
Offices
Square Footage
2322 sqft
Fireplace Present
No
Basement Type
Basement Features
Building Heating Type
Furnace
Heating Fuel
Building Cooling Type

Location

Learn more about this property
Listing provided by:
W Real Estate Inc.
MLS® number:
SK030683
Agent:
Sean Kundra
*Indicates required field
Name is required
Email is required
Please enter a valid phone number (e.g., 416-111-1111).