339 Taskamanwa Street, Saskatoon, Saskatchewan S7V 1X3

Listed for:
$686,570
4 beds
3 baths
Listed 131 days ago
House for rent: 339 Taskamanwa Street, Saskatoon, Saskatchewan S7V 1X3

View all 4 photos

About

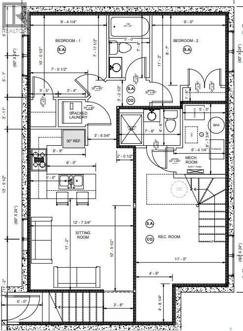
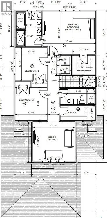
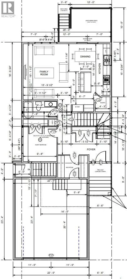
This home in Brighton, currently under construction, offers 2,045 sq. ft. of modern living in one of Saskatoon’s fastest-growing neighbourhoods. Surrounded by shopping, gyms, theatres, clinics, parks, and more, it combines convenience with comfort. Built by SK Homes, this property offers quality construction with thoughtful finishes throughout. The main floor features a guest bedroom and a 4-piece bathroom, along with an open-concept kitchen, dining, and family area. A feature wall with an electric fireplace anchors the living space, while large windows bring in plenty of natural light. The kitchen is finished with soft-close cabinetry and quartz countertops that flow throughout the entire home. From the dining area, step outside to the 12' x 10' deck, perfect for outdoor living. Upstairs, a bright second living space complements two bedrooms, an office, a shared 4-piece bathroom, and a convenient side-by-side laundry area. The master suite is spacious, complete with a walk-in closet and a 5-piece ensuite bathroom. The house also comes with an oversized two-car garage, which adds extra storage and functionality. A double concrete driveway, sidewalks to the suite entrance, and front landscaping are also included. This home includes a $6,000 appliance credit, allowing buyers to select appliances that fit their style. The basement will be insulated with pony walls, with a FUTURE DEVELOPMENT OPTION that includes a recreation room for the main side and a two-bedroom legal suite. By purchasing early, buyers have the opportunity to personalize the home with customizations such as paint, floor or carpet colours, cabinetry styles, countertop designs, and exterior finishes—making this home truly their own. (id:27476)

Property Highlights

MLS® Number
SK018922
Type
Single Family
Ownership Type
Freehold
Land Size
4737.46 sqft

Building

Building Type
House
Storeys
2.00
Square Footage
2045 sqft
Bathrooms Total
3
Bedrooms Total
4
Fireplace Present
Yes
Basement Type
Full (Unfinished)
Basement Features
Building Heating Type
Forced air
Heating Fuel
Natural gas
Building Cooling Type

Location

Learn more about this property
Listing provided by:
Realty ONE Group Dynamic
MLS® number:
SK018922
Agent:
Hasan Kazmi
*Indicates required field
Name is required
Email is required
Please enter a valid phone number (e.g., 416-111-1111).