Lot 3 855 Kensington Boulevard, Saskatoon, Saskatchewan S7L 6H1

Listed for:
$541,000
5 beds
4 baths
Listed 46 days ago
House for rent: Lot 3 855 Kensington Boulevard, Saskatoon, Saskatchewan S7L 6H1

View all 5 photos

Learn more about this property
Listing provided by:
Boyes Group Realty Inc.
MLS® number:
SK019080
Agent:
Aman Singh
*Indicates required field
Name is required
Email is required
Please enter a valid phone number (e.g., 416-111-1111).

About

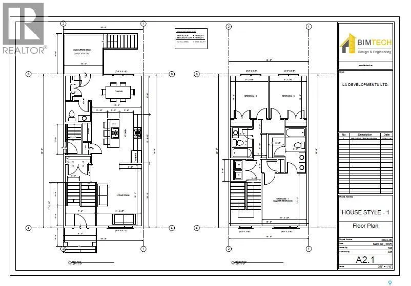
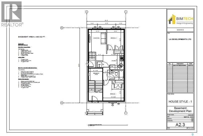
Welcome to this beautifully designed 1,500 sq. ft. two-storey home featuring a modern layout and thoughtful details throughout. The main floor offers a welcoming entry landing, a convenient two-piece bath, spacious living and dining areas, and a bright kitchen with direct access to the deck—perfect for entertaining. Upstairs, the primary bedroom boasts a 4 piece ensuite and walk-in closet, complemented by two additional bedrooms, a four-piece bath, and the convenience of second-floor laundry. The basement includes a fully self-contained two-bedroom legal suite, ideal for extended family or rental income. A detached double-car garage completes this exceptional property. (id:27476)

Property Highlights

MLS® Number
SK019080
Type
Single Family
Ownership Type
Freehold
Land Size
3414 sqft

Building

Building Type
House
Storeys
2.00
Square Footage
1500 sqft
Bathrooms Total
4
Bedrooms Total
5
Fireplace Present
Yes
Basement Type
Full (Finished)
Basement Features
Building Heating Type
Baseboard heaters, Forced air
Heating Fuel
Electric, Natural gas
Building Cooling Type

Location