A 3315 Fairlight Drive, Saskatoon, Saskatchewan S7M 3Y5

Listed for:
$18
0 beds
0 baths
Listed 49 days ago
Retail for rent: A 3315 Fairlight Drive, Saskatoon, Saskatchewan S7M 3Y5

View all 3 photos

Learn more about this property
Listing provided by:
RE/MAX Saskatoon
MLS® number:
SK020651
Agent:
Steve Jantzen Realty Prof. Corp.
*Indicates required field
Name is required
Email is required
Please enter a valid phone number (e.g., 416-111-1111).

About

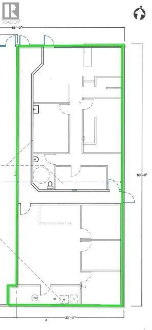
Prominent retail location available with excellent exposure on the corner of Fairmont Dr. and Fairlight Dr. Located next to the Westwinds Primary Health Centre in the Confederation business district. Professionally managed and well maintained property. Currently built out for previous medical use which includes exam rooms, reception area, staff areas and one (1) fully accessible washroom. Other current uses at property include Pharmacy and Veterinarian Clinic. There are 53 full size parking stalls available for common use. Unit A - 2525 SF. $18.00 PSF Net Rent; $8.90 PSF Occupancy Cost (inc. Property Tax); Net Rent ($3,787.50) + Occupancy Costs ($1,872.71) = $5,660.21 + GST per month. (id:27476)

Property Highlights

MLS® Number
SK020651
Type
Retail
Ownership Type
Leasehold
Land Size
37879.44 sqft

Building

Building Type
Retail
Square Footage
2525 sqft
Amenities
Storefront
Fireplace Present
No
Basement Type
Basement Features
Building Heating Type
Heating Fuel
Building Cooling Type

Location