198 Sharma Lane, Saskatoon, Saskatchewan S7W 0Y4

Listed for:
$589,900
5 beds
3 baths
Listed 4 days ago
House for rent: 198 Sharma Lane, Saskatoon, Saskatchewan S7W 0Y4

View all 43 photos

Learn more about this property
Listing provided by:
eXp Realty
MLS® number:
SK025060
Agent:
Raychel Moore
*Indicates required field
Name is required
Email is required
Please enter a valid phone number (e.g., 416-111-1111).

About

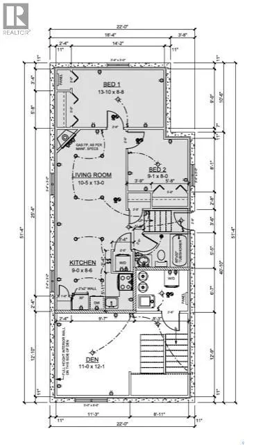
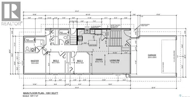
Extremely well appointed bi-level with legal two bedroom suite included in the price! Designed and priced exclusively for savvy investors, first-time home buyers or those looking to downsize. For only $589,900.00 you get a beautifully built bi-level with the following included: Finished legal suite with separate gas and electrical meters. Finished front landscaping with concrete walkways to main door and suite door. Vaulted ceilings throughout main living area, dining room and kitchen. Luxury vinyl plank flooring throughout for great durability and aesthetic appeal (No Carpet!). Upgraded Hardie Board exterior accents. There is a bonus room (den) in the basement (separate from legal suite). There are also pre-sale opportunities available with this model. GST & PST are included in the purchase price with any applicable rebate to builder. If purchaser(s) do not qualify for the rebates additional fees apply. Renderings were completed to be as close to the finishing as possible but should be regarded as artistic in nature. Images are of a recently built Erikson model - Fit & finish are very close, but some changes do apply. Limited inventory is available, contact your agent for further details! (id:27476)

Property Highlights

MLS® Number
SK025060
Type
Single Family
Ownership Type
Freehold
Land Size
35.9x121.6

Building

Building Type
House
Square Footage
1091 sqft
Bathrooms Total
3
Bedrooms Total
5
Fireplace Present
Yes
Basement Type
Full (Finished)
Basement Features
Building Heating Type
Forced air
Heating Fuel
Natural gas
Building Cooling Type
Central air conditioning, Air exchanger

Location