139 Taskamanwa Street, Saskatoon, Saskatchewan S7V 1X3

Listed for:
$509,900
5 beds
3 baths
Listed 16 days ago
House for rent: 139 Taskamanwa Street, Saskatoon, Saskatchewan S7V 1X3

View all 5 photos

Learn more about this property
Listing provided by:
eXp Realty
MLS® number:
SK025301
Agent:
Raychel Moore
*Indicates required field
Name is required
Email is required
Please enter a valid phone number (e.g., 416-111-1111).

About

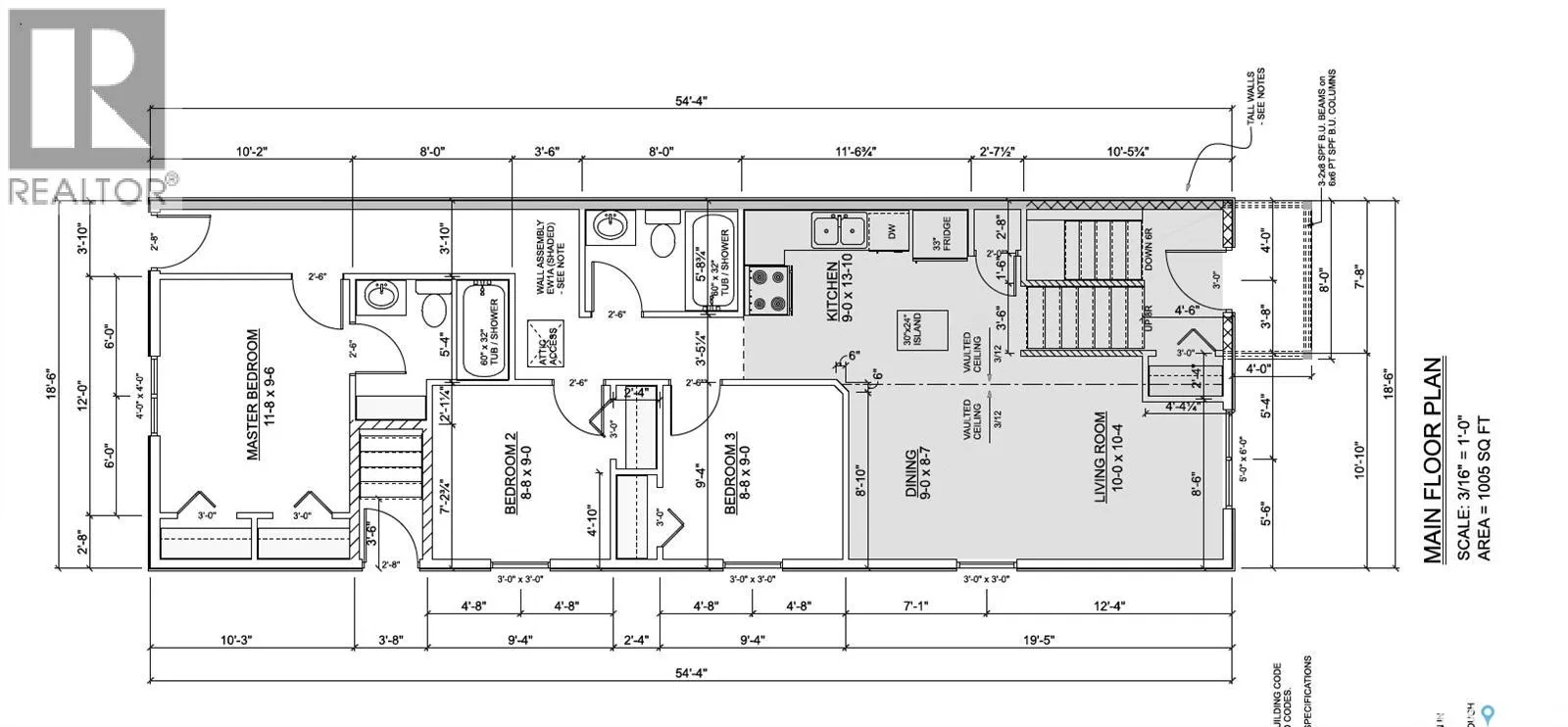
Extremely well appointed bi-level with legal two-bedroom suite! Designed and priced exclusively for savvy investors, first-time home buyers or those looking to downsize. For only $509,900.00 you get a beautifully built bilevel with the following included: Finished legal suite with separate gas and electrical meters. Finished front landscaping with concrete walkways to main door and suite door. Vaulted ceilings throughout main living area, dining room and kitchen. Luxury vinyl plank flooring throughout for great durability and aesthetic appeal (No Carpet!). Upgraded Hardie Board exterior accents. This is a pre-sale opportunity. GST & PST are included in the purchase price with any applicable rebate to builder. If purchaser(s) do not qualify for the rebates additional fees apply. Renderings were completed to be as close to the finishing as possible but should be regarded as artistic in nature. Please NOTE: Appliances are not included in the price. Limited inventory is available, contact your agent for further details! (id:27476)

Property Highlights

MLS® Number
SK025301
Type
Single Family
Ownership Type
Freehold
Land Size
26.2x116.9

Building

Building Type
House
Square Footage
1005 sqft
Bathrooms Total
3
Bedrooms Total
5
Fireplace Present
Yes
Basement Type
Full (Partially finished)
Basement Features
Building Heating Type
Forced air
Heating Fuel
Natural gas
Building Cooling Type

Location