319 Flynn Manor, Saskatoon, Saskatchewan S7V 0Z4

Listed for:
$1,295,000
3 beds
3 baths
Listed 110 days ago
House for rent: 319 Flynn Manor, Saskatoon, Saskatchewan S7V 0Z4

View all 6 photos

About

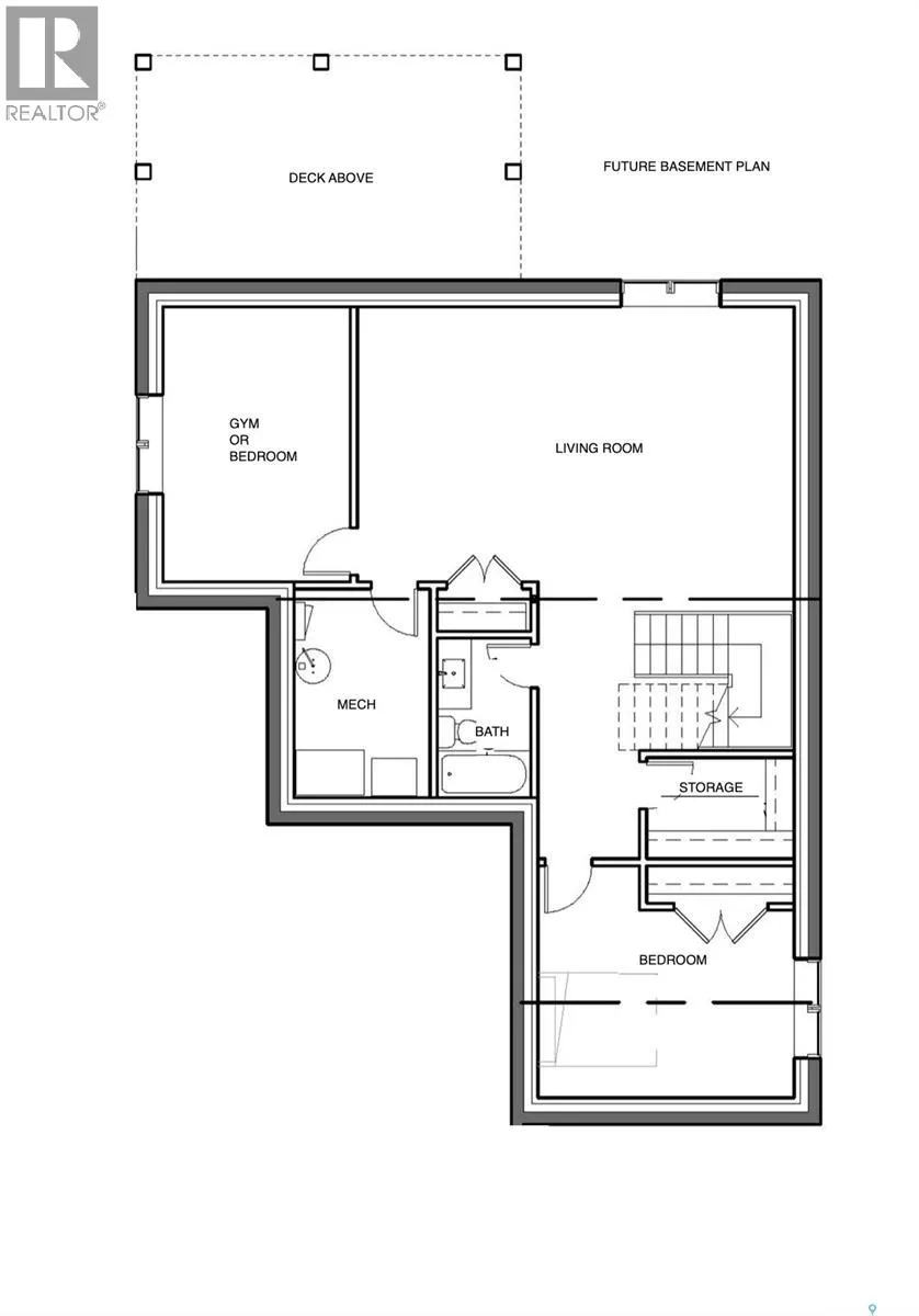
Please note that images are concepts only, as this home is not built yet. Lexis Homes is re-creating their popular Eclipse floor plan on this extra-wide walkout lot in Rosewood. All rooms are generously sized in this 2490 sq ft floor plan. 12-foot-high ceilings in the living room. Designer kitchen with walk through pantry. Wet bar located beside the dining room. Main floor office. Functional mudroom that looks fantastic. Large rear deck that is partially covered. The 2nd floor features a bonus room and 3 bedrooms. The primary bedroom is stunning with its bold colours and accents. The ensuite is amazing with a large shower and free-standing bathtub. Upgraded insulation in the walls for a more comfortable and energy-efficient home. The triple garage also features a bonus space for storage or a workshop area. Don’t miss this incredible opportunity to own a premium home in a highly sought-after location in the park and near schools! Alternate exterior options are available for this home. Lexis Homes offers the flexibility to create an alternate floor plan tailored to your unique design preferences. We also have other walkout lots available. (id:27476)

Property Highlights

MLS® Number
SK027545
Type
Single Family
Ownership Type
Freehold
Land Size
7500 sqft

Building

Building Type
House
Storeys
2.00
Square Footage
2490 sqft
Bathrooms Total
3
Bedrooms Total
3
Fireplace Present
Yes
Basement Type
Full (Partially finished)
Basement Features
Building Heating Type
Forced air
Heating Fuel
Building Cooling Type
Central air conditioning, Air exchanger

Location

Learn more about this property
Listing provided by:
RE/MAX Saskatoon
MLS® number:
SK027545
Agent:
Timothy Koehn
*Indicates required field
Name is required
Email is required
Please enter a valid phone number (e.g., 416-111-1111).