431 Stehwien Street, Saskatoon, Saskatchewan S7W 1M9

Listed for:
$546,900
4 beds
4 baths
Listed 9 days ago
House for rent: 431 Stehwien Street, Saskatoon, Saskatchewan S7W 1M9

View all 12 photos

About

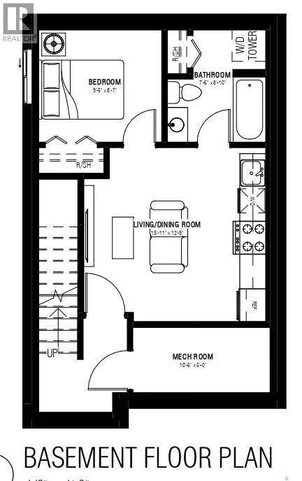
*PROMO: APPLIANCES & AC UNIT WILL BE INCLUDED WITH THE NEXT 5 HOMES!!* NOW ACCEPTING 5% DEPOSIT! RARE INVESTMENT OPPORTUNITY!!! FULLY DEVELOPED - 1 BEDROOM LEGAL BASEMENT SUITE WITH SEPARATE SIDE DOOR ENTRY IS INCLUDED!!! Welcome to The Aspen Collection by Decora Homes, located in the highly sought-after neighbourhood of Aspen Ridge. The Colorado model is a 1,234 sqft, 2-storey home that offers a functional and stylish layout with 3 bedrooms, 2.5 bathrooms, and convenient second-floor laundry with washer and dryer included. The open-concept main floor features luxury vinyl plank flooring throughout and a modern kitchen with quartz countertops, central air conditioning and appliances included. This model also includes a 1 bedroom, 1 bathroom legal basement suite with a separate side entry — a great option for rental income or multi-generational living. Additional features include xeriscaped front landscaping, a concrete walkway from the sidewalk to the front door, and a 20x20 concrete parking pad with back alley access. Now available for Pre-Sale, with estimated completion in Summer 2026. Buyers can choose from three thoughtfully curated colour palettes: Harmony, Tranquil, or Horizon. This lot also offers the option to add-on a standard detached garage or the "Malibu Detached Garage" suite, which features an additional ONE BEDROOM LEGAL RENTAL SUITE "LOFT" above the double detached garage. Add-on and upgrade options are available. Pricing options without a Basement Suite available, please inquire for more details! Please contact your favourite Realtor today for more information and add-on pricing! (id:27476)

Property Highlights

MLS® Number
SK027880
Type
Single Family
Ownership Type
Freehold
Land Size
30x127.9

Building

Building Type
House
Storeys
2.00
Square Footage
1234 sqft
Bathrooms Total
4
Bedrooms Total
4
Fireplace Present
No
Basement Type
Full (Finished)
Basement Features
Building Heating Type
Forced air
Heating Fuel
Natural gas
Building Cooling Type
Central air conditioning, Air exchanger

Location

Learn more about this property
Listing provided by:
Realty Executives Saskatoon
MLS® number:
SK027880
Agent:
Lacey Cossette
*Indicates required field
Name is required
Email is required
Please enter a valid phone number (e.g., 416-111-1111).