783 Nazarali Union, Saskatoon, Saskatchewan S7V 1X4

Listed for:
$699,900
5 beds
4 baths
Listed 58 days ago
House for rent: 783 Nazarali Union, Saskatoon, Saskatchewan S7V 1X4

View all 3 photos

About

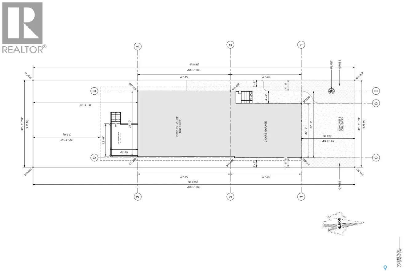
Welcome to 783 Nazarali Union – a beautifully designed home offering 3 bedrooms and 3 bathrooms two Storey House, plus a fully developed 2-bedroom legal basement suite. Perfect for homeowners looking for mortgage support or investors seeking strong rental potential! The main floor features a functional and modern layout with spacious living areas, stylish finishes like Quartz Counter Space, Glossy finished Cabinets , Vinyl Plank Flooring Throughout the house. Last but not least, it also comes with Modern Light Fixtures. Big windows bring plenty of natural light. The basement suite offers a private entrance, well-appointed kitchen, and comfortable living space so easy and Convenient to rent. Enjoy outdoor living with a rear deck, and appreciate the added value of all appliances included. As an added bonus, the SSI rebate goes directly to the buyer. A fantastic opportunity in a growing neighbourhood – don’t miss out! (id:27476)

Property Highlights

MLS® Number
SK028916
Type
Single Family
Ownership Type
Freehold
Land Size
3776 sqft

Building

Building Type
House
Storeys
2.00
Square Footage
1760 sqft
Bathrooms Total
4
Bedrooms Total
5
Fireplace Present
No
Basement Type
Full (Finished)
Basement Features
Building Heating Type
Baseboard heaters, Forced air
Heating Fuel
Electric, Natural gas
Building Cooling Type

Location

Learn more about this property
Listing provided by:
RE/MAX Saskatoon
MLS® number:
SK028916
Agent:
Shekhar Shukla
*Indicates required field
Name is required
Email is required
Please enter a valid phone number (e.g., 416-111-1111).