103 1015 Patrick Crescent, Saskatoon, Saskatchewan S7W 0M3

Listed for:
$255,000
2 beds
1 baths
Listed 2 days ago
Apartment for rent: 103 1015 Patrick Crescent, Saskatoon, Saskatchewan S7W 0M3

View all 33 photos

About

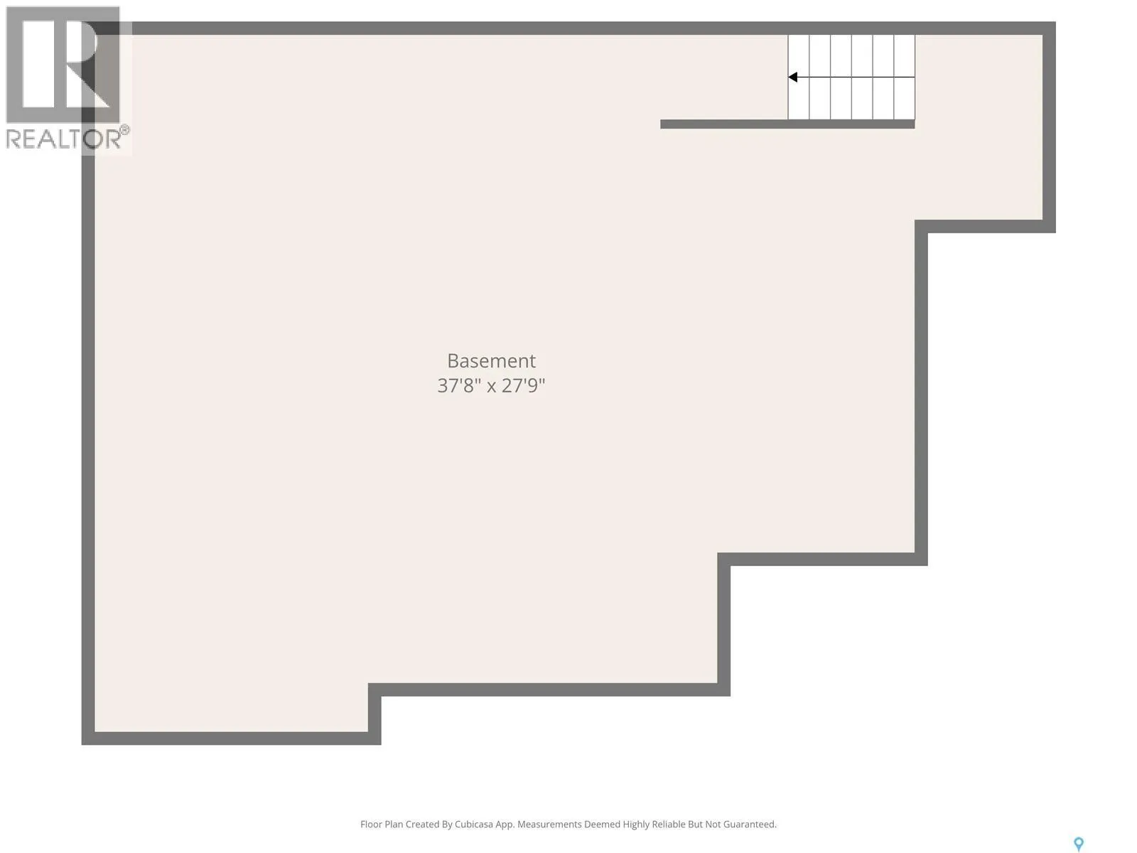
Welcome to the highly sought-after Ginger Lofts, where modern design meets everyday convenience. This bright and stylish corner-unit townhouse offers an exceptional blend of comfort, functionality, and contemporary finishes. Featuring 2 spacious bedrooms and 1 well-appointed bathroom, the open-concept layout is thoughtfully designed to maximize natural light and flow. The home showcases engineered hardwood flooring, glass and stainless steel railings, and a designer kitchen complete with quartz countertops, high-end stainless steel appliances, glass tile backsplash, and custom cabinetry with frosted glass accents. A striking panelled feature wall adds a refined, upscale touch. Enjoy year-round comfort with central air conditioning, along with the convenience of in-suite laundry and a generously sized laundry/storage room. All walls have been recently refreshed with new paint, enhancing both curb appeal and long-term value. A rare offering within the complex, this unit includes an unfinished basement, providing excellent potential to expand your living space, add a recreation area, or create a custom retreat tailored to your needs. Step outside to your private balcony, or take advantage of the exclusive clubhouse amenities, including a fitness centre, indoor pool, and games/entertainment room—perfect for relaxing or hosting guests. The property also includes one dedicated parking stall for added convenience. Ideally located close to schools, parks, shopping, and public transit, this move-in-ready home offers outstanding value in a vibrant and well-managed community. A fantastic opportunity for first-time buyers, investors, or downsizers—this one won’t last long! (id:27476)

Property Highlights

MLS® Number
SK032316
Type
Single Family
Maintenance Fee
366.00
Ownership Type
Condominium/Strata

Building

Building Type
Apartment
Square Footage
910 sqft
Bathrooms Total
1
Bedrooms Total
2
Amenities
Clubhouse, Swimming
Fireplace Present
No
Basement Type
Full (Unfinished)
Basement Features
Building Heating Type
Forced air
Heating Fuel
Natural gas
Building Cooling Type
Central air conditioning

Location

Learn more about this property
Listing provided by:
RE/MAX Saskatoon
MLS® number:
SK032316
Agent:
Sky Wu
*Indicates required field
Name is required
Email is required
Please enter a valid phone number (e.g., 416-111-1111).