52 Mawson Drive, Shields, Saskatchewan S7C 0A1

Listed for:
$119,999
0 beds
0 baths
Listed 117 days ago
Unknown for rent: 52 Mawson Drive, Shields, Saskatchewan S7C 0A1

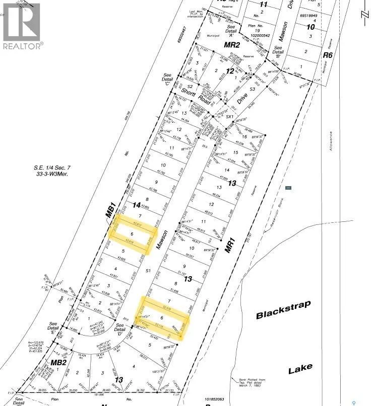
View all 34 photos

About

LAKE FRONT AND LAKE VIEW LOTS AT BLACKSTRAP SHIELDS! NOW IS THE TIME... Lifestyle, family, community, value & safety…Welcome to the Resort Village of Shields and Blackstrap Lake. Grab your coffee and let’s take a walk around your new building lot with beautiful and endless lake views. Imagine lake living with a short commute to Saskatoon. This is truly the best of both worlds. Making new family memories, imagine the fun…play area, pickle ball/tennis courts, community centre, 9 hole golf course, swimming, kayaking, fishing, paddle boarding, wake boarding, cross country skiing, quadding, skating, snowmobiling, ice fishing all right at your door…the list goes on. Beautiful panoramic lake front and lake view building lots. All utilities to the property line. Natural gas, city water, public sewer. Imagine having direct lake front access to your private dock out front. Just steps away with easy access or marked pathway access & enjoyment. School bus pick up and drop off right at your door, K-6 Dundurn and 7-12 Hanley. Ideally located 25 minutes south of Saskatoon on Hwy. 11. This location and community have everything for a new or growing family…welcome home! Building, lot and architectural requirements available at www.shields.ca . Refer to survey for accurate lot location. GST owing. (id:27476)

Property Highlights

MLS® Number
SK027011
Type
Vacant Land
Ownership Type
Freehold
Land Size
0.23 ac

Building

Building Type
Unknown
Fireplace Present
No
Basement Type
Basement Features
Building Heating Type
Heating Fuel
Building Cooling Type

Location

Learn more about this property
Listing provided by:
eXp Realty
MLS® number:
SK027011
Agent:
Laddie James Wesolowski
*Indicates required field
Name is required
Email is required
Please enter a valid phone number (e.g., 416-111-1111).