2190 South Railway Street E, Swift Current, Saskatchewan S9H 5P3

Listed for:
$939,000
0 beds
0 baths
Listed 131 days ago
2190 South Railway Street E, Swift Current, Saskatchewan S9H 5P3

View all 22 photos

Learn more about this property
Listing provided by:
RE/MAX of Swift Current
MLS® number:
SK016451
Agent:
Bobbi Tienkamp
*Indicates required field
Name is required
Email is required
Please enter a valid phone number (e.g., 416-111-1111).

About

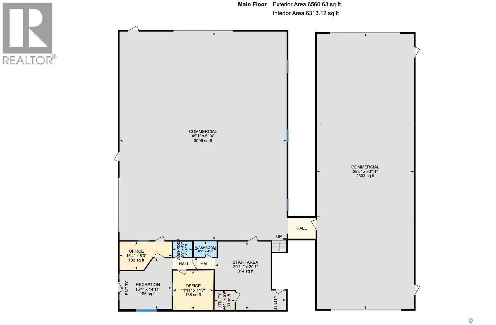
Looking for a prime location to house your growing business? Look no further. 2190 S. Service Rd. E. offers a .902-acre lot, centrally situated at the intersection of Highway 4 and South Railway St., just one exit from Highway 1. Located directly beside the railroad track on the southeast edge of the city, this property boasts exceptional accessibility. Accessibility is not the only advantage, Imagine the marketing potential with signage visible from this thoroughfare—expect exponential growth! The shop itself is impressive, with the main shop area spanning 4,250 sq. ft. It features open work space, two overhead heaters, one infrared heater, a lifting bar, and three overhead doors—two measuring 14 x 16 ft. and one measuring 16 x 16 ft. Adjacent to the shop, you'll find a versatile office area, currently including a 314 sq. ft. break room with laundry facilities, two washrooms, two separate office areas, and a large reception room with direct exterior access, providing an ideal space for your business's front end operations. Above, there's an open mezzanine currently divided into two office areas. Attached to the main shop is a 28.5 x 80 sq. ft. wash bay, added in 2012 by a reputable builder. This space is equipped with a central drain and features doors on each side allowing trucks to drive, measuring 16 x 20 ft. tall. All doors are automatic, fit with a 4 inch file line, the buildings, along with the roofs, are constructed of metal for optimal durability and the building is fit with three phase power. The lot itself accommodates ample parking, with multiple plug-in stations and additional space for an entire fleet. Significant yard construction has been completed to cater to heavy equipment, with the ground pressed and compacted accordingly. The property is connected to city water and municipal sewer. A comprehensive environmental analysis has been conducted, confirming the property is clear, report available with an accepted offer. Call for more information (id:27476)

Property Highlights

MLS® Number
SK016451
Type
Industrial
Ownership Type
Freehold
Land Size
0.9 ac

Building

Square Footage
6560 sqft
Amenities
Storefront
Fireplace Present
No
Basement Type
Basement Features
Building Heating Type
Furnace, Radiant heat
Heating Fuel
Building Cooling Type

Location