723 Kenderdine Boulevard, Turtle Lake, Saskatchewan S0M 2Y0

Listed for:
$319,900
2 beds
1 baths
Listed 69 days ago
House for rent: 723 Kenderdine Boulevard, Turtle Lake, Saskatchewan S0M 2Y0

View all 6 photos

About

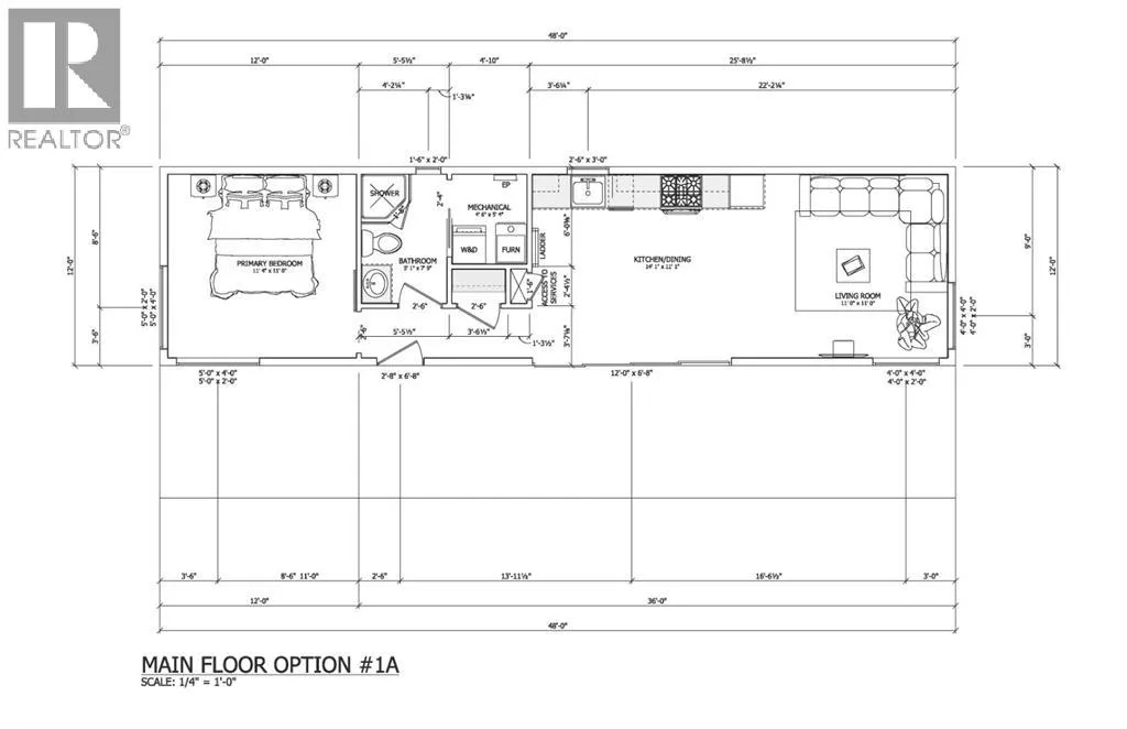
723 Kenderdine Boulevard – Sunset View BeachThis property is not yet built. The seller is offering this modern modular home as a proposed build option for the lot at Sunset View Beach, just steps from the waterfront. The proposed design features a 12’ x 48’ modular home built on a screw pile foundation, offering an efficient and thoughtfully planned layout that works well as a recreational retreat or seasonal getaway. The design includes 2 bedrooms, luxury vinyl plank flooring, and a warm contemporary finish with shiplap pine ceilings and walls. The proposed kitchen and bathroom feature quartz countertops, and the bathroom includes a tile-surround shower and a glass door. Custom bedroom millwork provides smart storage solutions, and a loft space offers additional sleeping or storage options. In-home laundry is also included for added convenience. Heating and cooling are planned with an air-source heat pump and backup electric furnace, providing efficient year-round comfort, along with triple-glazed windows to enhance energy efficiency. A major advantage of this lot is that septic, power, and water are already installed, helping reduce development time and cost. This is an excellent opportunity to secure a serviced lot with a proposed modern build in the desirable Sunset View Beach community, offering lakeside living in a peaceful recreational setting. (id:27476)

Property Highlights

MLS® Number
A2280755
Type
Single Family
Ownership Type
Freehold
Land Size
0.27 ac|10,890 - 21,799 sqft (1/4 - 1/2 ac)
Parking Space Total
4

Building

Building Type
House
Storeys
1.00
Square Footage
659 sqft
Bathrooms Total
1
Bedrooms Above Ground
2
Bedrooms Total
2
Amenities
Water Nearby
Exterior Finish
Metal
Fireplace Present
No
Basement Type
None
Basement Features
Building Heating Type
Baseboard heaters
Heating Fuel
Electric
Building Cooling Type
None

Location

Learn more about this property
Listing provided by:
RE/MAX OF LLOYDMINSTER
MLS® number:
A2280755
Agent:
Harpreet Christie
*Indicates required field
Name is required
Email is required
Please enter a valid phone number (e.g., 416-111-1111).