237 Froese Crescent, Warman, Saskatchewan S0K 4S0

Listed for:
$433,800
3 beds
2 baths
Listed 7 days ago
House for rent: 237 Froese Crescent, Warman, Saskatchewan S0K 4S0

View all 4 photos

About

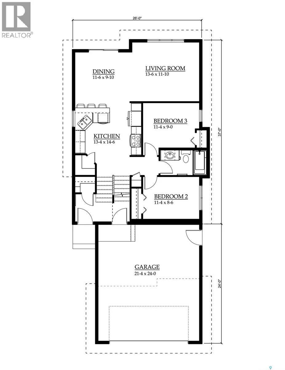
Features & Amenities: -1232 sq. Modified Bilevel with Double Attached Garage -3 Bedrooms and 2 Bathroom -Kitchen with pantry and extended ledge seating -Soft Close Cabinetry Throughout -LED Light Bulbs Throughout -High-Efficiency Furnace and Power Vented Hot Water Heater -HRV Unit -10 Year Saskatchewan New Home Warranty -GST and PST included in purchase price. GST and PST rebate back to builder. (id:27476)

Property Highlights

MLS® Number
SK031207
Type
Single Family
Ownership Type
Freehold
Land Size
34x104

Building

Building Type
House
Square Footage
1232 sqft
Bathrooms Total
2
Bedrooms Total
3
Fireplace Present
No
Basement Type
Full (Unfinished)
Basement Features
Building Heating Type
Forced air
Heating Fuel
Natural gas
Building Cooling Type

Location

Learn more about this property
Listing provided by:
Boyes Group Realty Inc.
MLS® number:
SK031207
Agent:
Ashley Craik Realty Prof. Corp.
*Indicates required field
Name is required
Email is required
Please enter a valid phone number (e.g., 416-111-1111).