707 Ballesteros Crescent, Warman, Saskatchewan S0K 4S3

Listed for:
$606,100
3 beds
2 baths
Listed 53 days ago
House for rent: 707 Ballesteros Crescent, Warman, Saskatchewan S0K 4S3

View all 4 photos

About

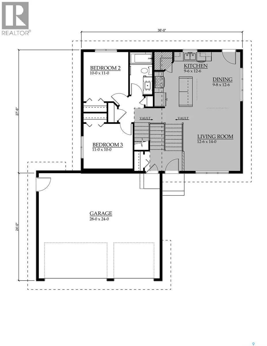
Features and Amenities: -1350 sq. ft Modified Bilevel -Triple Attached Garage -3 Bedrooms and 2 Bathroom -Kitchen with Island w/ extended ledge -Soft Close Cabinetry Throughout -LED Light Bulbs Throughout -High-Efficiency Furnace and Power Vented Hot Water Heater -HRV Unit -10 Year Saskatchewan New Home Warranty GST and PST included in purchase price. GST and PST rebate back to builder.- (id:27476)

Property Highlights

MLS® Number
SK031192
Type
Single Family
Ownership Type
Freehold
Land Size
54x131

Building

Building Type
House
Square Footage
1350 sqft
Bathrooms Total
2
Bedrooms Total
3
Fireplace Present
No
Basement Type
Full (Unfinished)
Basement Features
Building Heating Type
Forced air
Heating Fuel
Natural gas
Building Cooling Type

Location

Learn more about this property
Listing provided by:
Boyes Group Realty Inc.
MLS® number:
SK031192
Agent:
Ashley Craik Realty Prof. Corp.
*Indicates required field
Name is required
Email is required
Please enter a valid phone number (e.g., 416-111-1111).