701 Pebble Drive, Webb Rm No. 138, Saskatchewan S0N 2X0

Listed for:
$325,000
2 beds
1 baths
Listed 27 days ago
Modular for rent: 701 Pebble Drive, Webb Rm No. 138, Saskatchewan S0N 2X0

View all 22 photos

About

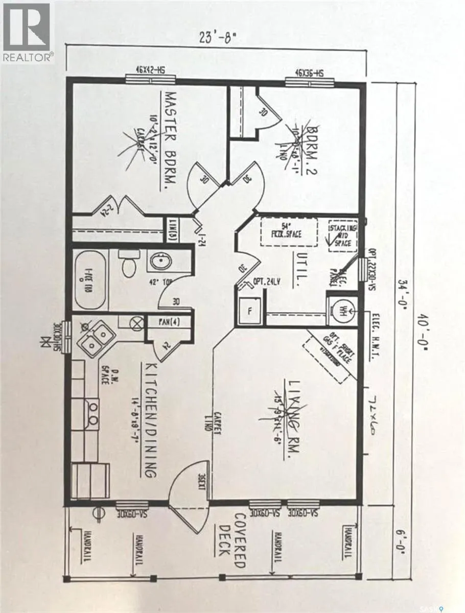
Ferguson Bay Located on a deeded, waterfront lot neighboring Ferguson Bay, this attractive 4-season 2016 modular home comes fully-furnished & includes a 110ft of dock as well as a large platform deck & stairs that lead down to the water area. The house is secured on screw piles, features 30-year Weatherwood arch shingles, premium vinyl siding, new skirting & dirt work around it, metal soffit & fascia, 100 amp power, a septic tank, & a 40 gallon electric hot water heater. Assorted young trees have been started on the property, & included is a garden shed & a 0-turn lawn mower tractor. The interior is a pleasant & friendly open concept living/dining/kitchen with beautiful natural lighting. The eat-in kitchen features PVC walnut cabinets with soft-close doors & drawers, under cabinet lighting, black appliances with a self-cleaning top-range oven, & a good-size pantry. From this area of the house you will appreciate the open view to the water below, & stepping out the front door the deck & BBQ area feels like an extension of the house, providing terrific entertaining options. Towards the back of the house you will find the 2 comfortable bedrooms with a closet as well as the 4-piece bath. The back entry comes in from the driveway & this area hosts the stacked laundry as well as space for storage & outerwear/lifejackets, etc to be neatly stored, while utilities such as the furnace & propane tank are located back here as well. The home features central air for optimal comfort in the summer months.The property also offers excess space for further development of a garage or boathouse if desired. Duncairn Dam offers excellent fishing, water sports, as well as the true southwest Saskatchewan combination of both open views and privacy for relaxed hiking and quiet days. Located only 40 minutes from Swift Current, here you get to enjoy the feeling of being tucked away on a little corner of heaven but also not far from all amenities. Call for more info or to book your own personal showing! (id:27476)

Property Highlights

MLS® Number
SK029785
Type
Single Family
Ownership Type
Freehold
Land Size
0.46 ac

Building

Building Type
Modular
Storeys
1.00
Square Footage
816 sqft
Bathrooms Total
1
Bedrooms Total
2
Fireplace Present
No
Basement Type
Basement Features
Building Heating Type
Forced air
Heating Fuel
Propane
Building Cooling Type

Location

Learn more about this property
Listing provided by:
eXp Realty
MLS® number:
SK029785
Agent:
Kimberly A Larson
*Indicates required field
Name is required
Email is required
Please enter a valid phone number (e.g., 416-111-1111).