1b 27 2nd Avenue, Yorkton, Saskatchewan S3N 1G1

Listed for:
$4
0 beds
0 baths
Listed 33 days ago
Retail for rent: 1b 27 2nd Avenue, Yorkton, Saskatchewan S3N 1G1

View all 12 photos

Learn more about this property
Listing provided by:
RE/MAX Crown Real Estate
MLS® number:
SK995556
Agent:
John Chung
*Indicates required field
Name is required
Email is required
Please enter a valid phone number (e.g., 416-111-1111).

About

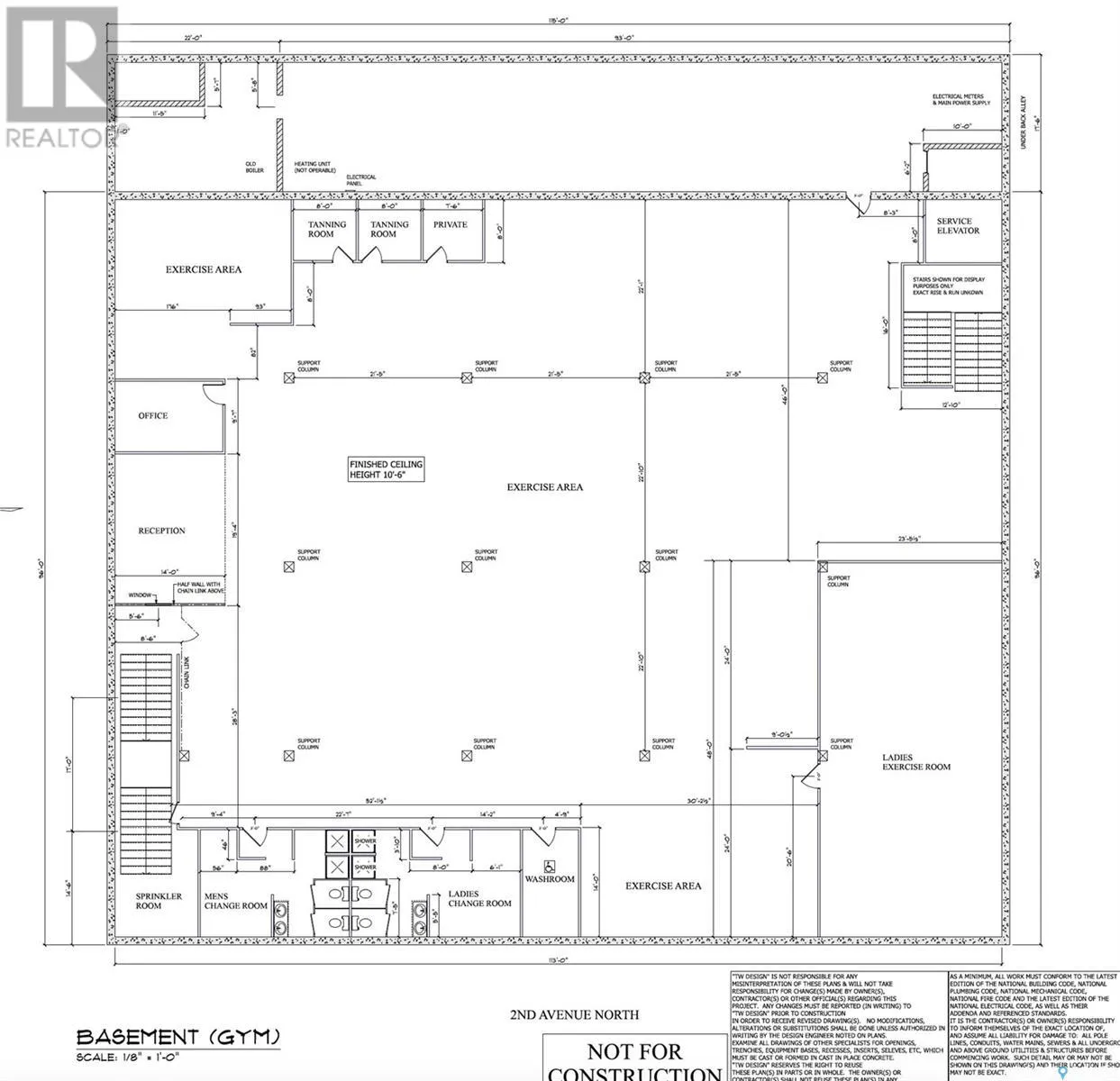
Affordable rent !!!! Are you a business owner looking for a new location Yorkton, SK? Look no further than 1B 27 2nd Ave. This large format open basement space is perfect for retail businesses, with plenty of room to display your products and attract customers. You'll find a retail counter, a small office area and convenient bathrooms. Don't miss out on this opportunity. Previously set up as a gym, it is now vacant and wide open for multitude of uses. (id:27476)

Property Highlights

MLS® Number
SK995556
Type
Retail
Ownership Type
Leasehold

Building

Building Type
Retail
Square Footage
11726 sqft
Fireplace Present
No
Basement Type
Basement Features
Building Heating Type
Other
Heating Fuel
Building Cooling Type

Location