48 Whitewater Place, Yorkton, Saskatchewan S3N 0X1

Listed for:
$568,900
7 beds
4 baths
Listed 154 days ago
House for rent: 48 Whitewater Place, Yorkton, Saskatchewan S3N 0X1

View all 20 photos

Learn more about this property
Listing provided by:
Choice Realty Systems
MLS® number:
SK009957
Agent:
Edward Ramsey
*Indicates required field
Name is required
Email is required
Please enter a valid phone number (e.g., 416-111-1111).

About

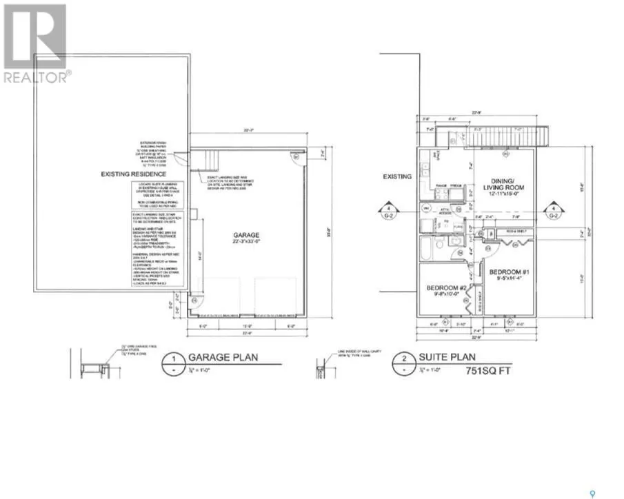
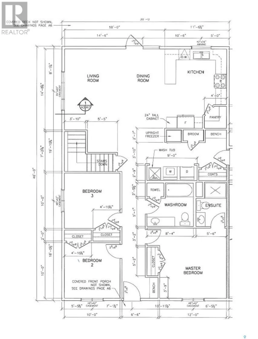
You will find this one of a kind income earning home in Yorkton's newest neighbourhood ..RIVERSIDE MEADOWS!! The main residence has over 2,600 sq. ft. of living space that will suit a growing family. The main floor has open kitchen/dining/living space with garden doors to the fenced back yard. The master bedroom with en-suite, 2 more bedrooms,4 piece bathroom and mud/laundry room complete the main floor. The basement has large windows and consists of another 2 spacious bedrooms, large rec room, exercise room, 3 storage spaces and 5 piece bathroom. The oversized attached garage is heated with access to the front and back yard. The backyard has a large east facing covered deck to get the morning sun and afternoon shade, garden space, 2 playhouses, large shed and many trees including three apple. The separate apartment/living space above the garage is completely separated from the house with private rear entrance. It has 2 bedrooms, 1 bathroom with tub, utility room and large living/dining/kitchen space. THE BONUS! The apartment earns $1250 per month to help pay down your mortgage faster! Tenant pays their own power(electric heat). There are 2 sets of appliances included. Move in to this one of a kind home and be able to pay half your mortgage without lifting a finger! (id:27476)

Property Highlights

MLS® Number
SK009957
Type
Single Family
Ownership Type
Freehold
Land Size
8084 sqft

Building

Building Type
House
Storeys
1.00
Square Footage
2131 sqft
Bathrooms Total
4
Bedrooms Total
7
Fireplace Present
No
Basement Type
Full (Finished)
Basement Features
Building Heating Type
Forced air
Heating Fuel
Electric, Natural gas
Building Cooling Type
Central air conditioning, Air exchanger, Window air conditioner

Location