605-2240 2nd Avenue, Whitehorse, Yukon Y1A 1C8

Listed for:
$1,150,000
2 beds
2 baths
Listed 33 days ago
Apartment for rent: 605-2240 2nd Avenue, Whitehorse, Yukon Y1A 1C8

View all 11 photos

Learn more about this property
Listing provided by:
COLDWELL BANKER REDWOOD REALTY
MLS® number:
16223
Agent:
Sara Skelton
*Indicates required field
Name is required
Email is required
Please enter a valid phone number (e.g., 416-111-1111).

About

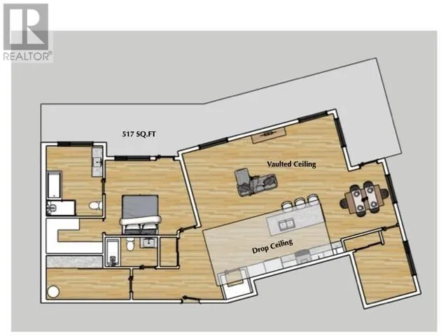
605- 'THE LOFT' Penthouses are available now! Architectural innovation paired with a thoughtful and modern design. Showcased by 20' vaulted ceilings with exposed beams, dramatic 2-story windows providing an abundance of natural light and a large wrap-around deck with jaw-dropping views. This south-west facing unit located on the top floor comes with air conditioning and offers a spacious, open concept layout with 2 bedrooms and 2 full bathrooms. Purchase includes a design consultation with the developer to select finishing options to customize to your aesthetic! Situated just a few steps away from grocery stores, coffee shops, restaurants, the Yukon River walking trails and the community events at Shipyards Park. Also includes exterior amenity space and underground parking. (id:27476)

Property Highlights

MLS® Number
16223
Type
Single Family
Maintenance Fee
558.07
Ownership Type
Condominium/Strata

Building

Building Type
Apartment
Square Footage
1550 sqft
Bathrooms Total
2
Bedrooms Total
2
Fireplace Present
No
Basement Type
Basement Features
Building Heating Type
Heating Fuel
Building Cooling Type

Location