1-1805 Dogwood Street, Whitehorse, Yukon Y1A 4A1

Listed for:
$579,000
3 beds
3 baths
Listed 42 days ago
Row / Townhouse for rent: 1-1805 Dogwood Street, Whitehorse, Yukon Y1A 4A1

View all 39 photos

Learn more about this property
Listing provided by:
RE/MAX ACTION REALTY
MLS® number:
16989
Agent:
Wendy Close
*Indicates required field
Name is required
Email is required
Please enter a valid phone number (e.g., 416-111-1111).

About

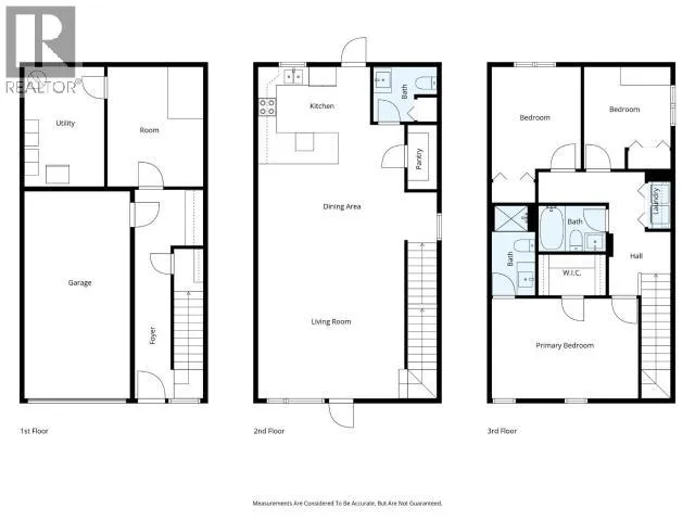
Charming modern 3 bed 3 bath townhome in popular Porter Creek offers the perfect blend of comfort, style, and convenience. With gorgeous mountain views, abundant natural light, and two generous decks, this home is designed for easy living and year-round enjoyment. Step inside to a bright, functional entryway featuring custom built-in coat and shoe storage, leading to a spacious layout with gorgeous luxury vinyl plank flooring throughout--no carpet anywhere. The living room, kitchen, and all three bathrooms have thoughtfully designed modern upgrades, giving the home a contemporary feel. The flexible den on the lower level makes an ideal workout room, craft area, or home office. Additional features include roller blinds, a single-car garage, and a second designated parking spot. Located close to schools, shopping, dining, trails, and downtown, this move-in ready townhome provides the lifestyle you've been looking for--low-maintenance, stylish, and perfectly situated. (id:27476)

Property Highlights

MLS® Number
16989
Type
Single Family
Maintenance Fee
387.11
Ownership Type
Condominium/Strata

Building

Building Type
Row / Townhouse
Square Footage
2086 sqft
Bathrooms Total
3
Bedrooms Total
3
Fireplace Present
No
Basement Type
Basement Features
Building Heating Type
Heating Fuel
Building Cooling Type

Location