141 Copperhead Road Se, Calgary, Alberta T2Z 5G9

Listed for:
$719,900
3 beds
3 baths
Listed 22 days ago
House for rent: 141 Copperhead Road Se, Calgary, Alberta T2Z 5G9

View all 4 photos

Learn more about this property
Listing provided by:
Real Estate Professionals Inc.
MLS® number:
A2231543
Agent:
Umair A. Malik
*Indicates required field
Name is required
Email is required
Please enter a valid phone number (e.g., 416-111-1111).

About

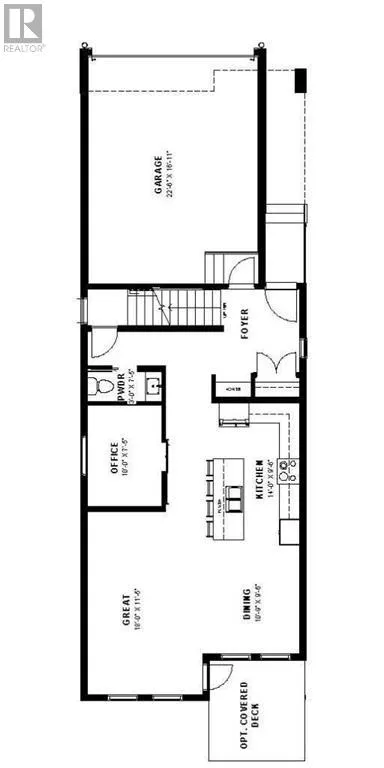
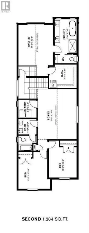
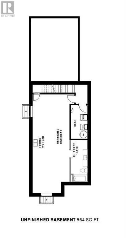
Pre-construction Emerson model by Vesta Properties in Copperfield – Spring 2026 completion! This beautifully designed 3 bedroom, 2.5 bath home offers an open-concept main floor with a spacious kitchen featuring quartz countertops and premium finishes throughout. Upstairs you’ll find a central bonus room, full laundry, and a generous primary suite with walk-in closet and ensuite. Option to add a legal basement suite for extra income or multi-generational living. Located in a family-friendly SE community close to schools, parks, and future amenities. Don’t miss your chance to personalize your new home today! (id:27476)

Property Highlights

MLS® Number
A2231543
Type
Single Family
Community Name
Copperfield
Ownership Type
Freehold
Land Size
323 m2|0-4,050 sqft
Parking Space Total
4

Building

Building Type
House
Storeys
2.00
Square Footage
2098 sqft
Bathrooms Total
3
Bedrooms Above Ground
3
Bedrooms Total
3
Amenities
Park, Playground, Schools, Shopping
Exterior Finish
Vinyl siding
Fireplace Present
No
Basement Type
Full (Unfinished)
Basement Features
Building Heating Type
Forced air
Heating Fuel
Natural gas
Building Cooling Type
None

Location