7425 20 Street Se, Calgary, Alberta T2C 0P9

Listed for:
$2,690,000
0 beds
0 baths
Listed 65 days ago
Multi-Family for rent: 7425 20 Street Se, Calgary, Alberta T2C 0P9

View all 3 photos

Learn more about this property
Listing provided by:
MaxWell Canyon Creek
MLS® number:
A2267502
Agent:
Sean Na
*Indicates required field
Name is required
Email is required
Please enter a valid phone number (e.g., 416-111-1111).

About

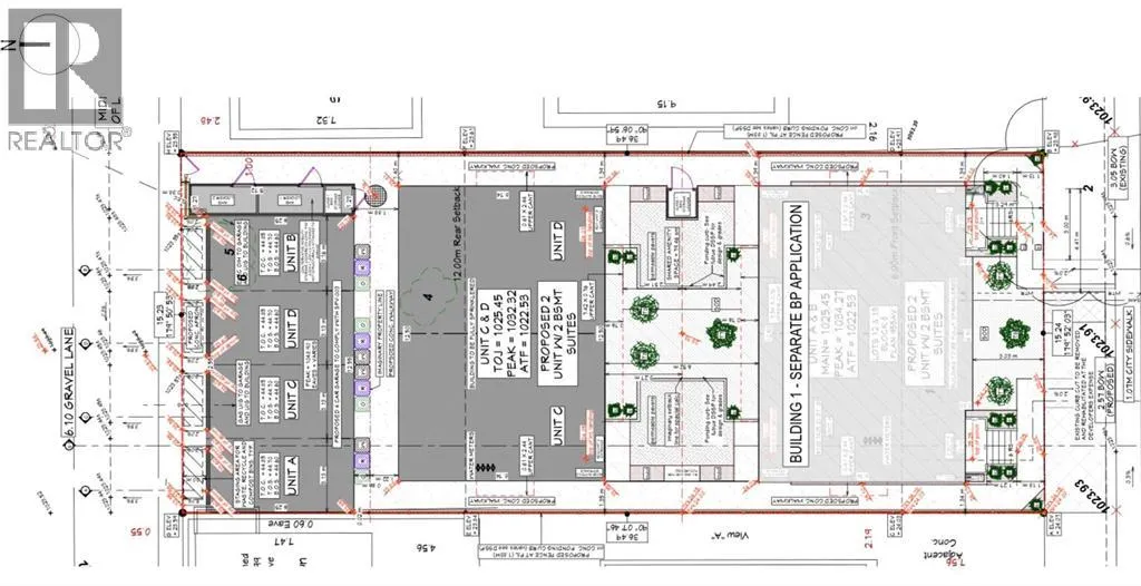
A rare opportunity to acquire a brand-new 4-plex with 4 legal basement suites — a total of 8 fully self-contained rental units complete with 4 single garages — delivering exceptional income potential and long-term stability for any investor. Each basement suite features its own private entrance and a spacious 1-bedroom layout, maximizing privacy, tenant demand, and leasing flexibility.Designed with modern architecture and quality finishes throughout, this project stands out as one of the most attractive multi-family investments in Ogden’s rapidly evolving community. Located on an interior lot, it offers a quiet residential setting while still providing quick access to major corridors such as Glenmore Trail, Deerfoot Trail, and Stoney Trail, as well as proximity to employment hubs, Quarry Park, schools, and city transit — ensuring strong rental appeal.The upper units feature 3 bedrooms, 2 bathrooms, open-concept living spaces, and stylish kitchens with premium cabinetry and fixtures. The legal basement suites include 9’ ceilings, 1 bedroom, 1 bathroom, and well-planned layouts that create bright and comfortable living areas. Built to a higher construction standard with thoughtful design and a practical garage-access configuration, this 8-unit income property also qualifies for CMHC MLI Select (subject to lender/CMHC approval), offering potential reduced down payment and extended amortization options.A beautifully built, turn-key multi-unit investment in one of Calgary’s most promising inner SE communities. (id:27476)

Property Highlights

MLS® Number
A2267502
Type
Multi-family
Community Name
Ogden
Ownership Type
Freehold
Land Size
Unknown
Parking Space Total
8

Building

Building Type
Multi-Family
Square Footage
4660 sqft
Fireplace Present
No
Basement Type
Basement Features
Building Heating Type
Heating Fuel
Building Cooling Type

Location