2709 18 Street Nw, Calgary, Alberta T2T 1E2

Listed for:
$1,167,700
4 beds
4 baths
Listed 60 days ago
Duplex for rent: 2709 18 Street Nw, Calgary, Alberta T2T 1E2

View all 13 photos

About

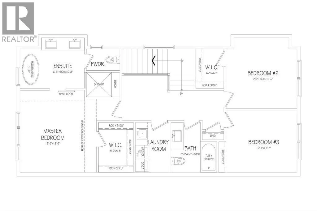
This modern semi-detached infill home in Capitol Hill Calgary makes a strong first impression with its timeless exterior, oversized windows, and bright, light-filled interior. Designed for both style and everyday function, this NON-SUITED inner-city home offers the perfect balance of open-concept living with clearly defined spaces, creating a polished and comfortable layout ideal for families, professionals, or those looking to upgrade in a prime location.With 4 bedrooms, 3.5 bathrooms, and a fully finished basement, there is room to entertain, unwind, and grow over time. The front entry opens into a proper foyer with built-in storage, offering the organization and practicality buyers love in a modern Calgary infill.Just off the foyer is a dedicated formal dining room, ideal for hosting family dinners or entertaining guests, filled with natural light while remaining connected to the rest of the main floor.At the heart of the home, the kitchen is refined and highly functional with quartz countertops, a full-height backsplash, and sleek modern cabinetry. The premium appliance package supports serious cooking and everyday convenience, including a gas cooktop, wall oven, French door refrigerator, dishwasher, and space for a beverage fridge. The oversized island provides ample prep space and seating, making it perfect for gatherings and open-concept entertaining.The living room is anchored by a striking full-height gas fireplace and framed by large rear windows overlooking the yard. Sliding patio doors lead to the outdoor space, creating seamless indoor-outdoor living, ideal for summer evenings and weekend relaxation.A discreet powder room and a thoughtfully designed mudroom with built-in storage complete the main level, supporting busy lifestyles with smart organization.Upstairs, the primary suite feels calm and private, featuring a walk-in closet and a spa-inspired ensuite with a freestanding tub, double vanity, separate shower, and private water closet. Tw o additional bedrooms are generously sized and share a full bath. Upstairs laundry adds everyday convenience and keeps routines effortless.The fully finished basement expands the home’s versatility with a large recreation area, plus a dedicated home theatre, gym, games room, or office space. A stylish wet bar enhances entertaining potential, while the fourth bedroom and full bathroom make this level ideal for guests, teenagers, or multi-generational living.Located on a quiet, tree-lined street, this home is in one of the most desirable inner-city Calgary neighbourhoods. Enjoy being steps from Confederation Park, minutes to the University of Calgary, SAIT, North Hill Centre, local cafés, transit, and a short commute to downtown Calgary.With its modern design, walkability, and strong community feel, Capitol Hill remains one of Calgary’s most sought-after infill locations. (id:27476)

Property Highlights

MLS® Number
A2279872
Type
Single Family
Community Name
Capitol Hill
Ownership Type
Freehold
Land Size
273 m2|0-4,050 sqft
Parking Space Total
2

Building

Building Type
Duplex
Storeys
2.00
Square Footage
1891 sqft
Bathrooms Total
4
Bedrooms Above Ground
3
Bedrooms Total
4
Amenities
Golf Course, Park, Playground, Recreation Nearby, Schools, Shopping
Exterior Finish
Composite Siding, Stucco
Fireplace Present
Yes
Basement Type
Full (Finished)
Basement Features
Building Heating Type
Forced air
Heating Fuel
Building Cooling Type
See Remarks

Location

Learn more about this property
Listing provided by:
RE/MAX House of Real Estate
MLS® number:
A2279872
Agent:
Lisa Johnson
*Indicates required field
Name is required
Email is required
Please enter a valid phone number (e.g., 416-111-1111).

Street Spotlight - For sale