3305 New Brighton Gardens Se, Calgary, Alberta T2Z 0A2

Listed for:
$389,800
2 beds
3 baths
Listed 4 days ago
Row / Townhouse for rent: 3305 New Brighton Gardens Se, Calgary, Alberta T2Z 0A2

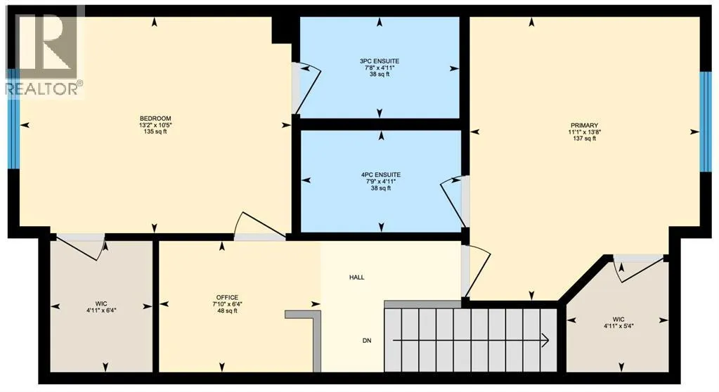
View all 39 photos

About

Welcome to this beautifully maintained townhome located in a well-managed complex, offering a functional double master bedroom design and an open-concept main floor perfect for modern living.The kitchen features a central island, tile backsplash, and built-in microwave hood fan, connecting seamlessly to the dining and living areas — an ideal layout for gatherings or relaxed evenings at home.Upstairs, you’ll find two spacious master suites, each with a private ensuite, along with a versatile den area ideal for a home office. Neutral finishes and laminate flooring throughout the main level create a clean and timeless look.This home also includes a double attached garage (19’x17’), extra storage space, and a convenient laundry sink. Step outside to enjoy your private fenced front patio, perfect for morning coffee, entertaining, or a small play space for pets.Located steps away from a school, bus stop with LRT connection, parks, and shopping — this home offers both comfort and convenience in one of the most desirable areas of the community. (id:27476)

Property Highlights

MLS® Number
A2285675
Type
Single Family
Community Name
New Brighton
Maintenance Fee
303.45
Ownership Type
Condominium/Strata
Land Size
Unknown
Parking Space Total
2

Building

Building Type
Row / Townhouse
Storeys
2.00
Square Footage
1229 sqft
Bathrooms Total
3
Bedrooms Above Ground
2
Bedrooms Total
2
Amenities
Clubhouse Park, Playground, Recreation Nearby, Schools, Shopping
Exterior Finish
Vinyl siding
Fireplace Present
No
Basement Type
Partial (Unfinished)
Basement Features
Building Heating Type
Forced air
Heating Fuel
Building Cooling Type
None

Location

Learn more about this property
Listing provided by:
MaxWell Canyon Creek
MLS® number:
A2285675
Agent:
Andrey Kutepov
*Indicates required field
Name is required
Email is required
Please enter a valid phone number (e.g., 416-111-1111).

Street Spotlight - For sale