22 Greenwich Row Nw, Calgary, Alberta T3B 6P4

Listed for:
$1,359,900
5 beds
4 baths
Listed 19 days ago
House for rent: 22 Greenwich Row Nw, Calgary, Alberta T3B 6P4

View all 4 photos

About

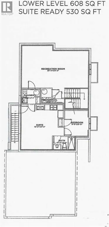
MULTI-GENERATIONAL LIVING/INCOME POTENTIAL! Experience the perfect blend of style and function in The Manhattan, a 2,300 ft2 two-storey home. The main floor features 1,137 sq. ft., including a dedicated den or bedroom with a full ensuite, ideal for working from home or as a quiet retreat. The upper floor provides 1,162 sq. ft. of living space, including 3 spacious bedrooms, 2 bathrooms, and a convenient laundry room. With an open-to-below design, enjoy the grandeur of the main living area from the upper floor. The fully developed basement of this home includes a finished recreation room for the main house and a complete 1-bedroom Legal suite with a separate entrance. (Legal Suite can be redesigned to make the home 'single-family' living.) The triple front drive garage ensures plenty of space for vehicles and storage.As a Custom Concepts’ Personalized Home this home offers the perfect balance of convenience and customization, allowing you to jump-start the build process by approximately six months. The initial design, permitting, foundation, and framing are already completed, so you can begin personalizing at the rough-in stage. If you're looking for a quicker build process and a faster move-in date with the added benefit of tailoring your home to your design preferences, our Personalized Homes might be the perfect choice for you.Upper Greenwich is a distinctive community nestled on the west edge of Calgary – an easy commute to downtown with quick access to the Rocky Mountains. Upper Greenwich is a lovely blend of sophisticated urban living in natural surroundings. Walking paths, sport courts, playgrounds and abundant greenspaces can be enjoyed right outside your front door. The HOA ensures upkeep of the amenities of the community and helps bring people together with seasonal celebrations and neighborhood events. Upper Greenwich is a community that is connected, active and thriving! (id:27476)

Property Highlights

MLS® Number
A2282441
Type
Single Family
Community Name
Greenwood/Greenbriar
Ownership Type
Freehold
Land Size
5060 sqft|4,051 - 7,250 sqft
Parking Space Total
6

Building

Building Type
House
Storeys
2.00
Square Footage
2295 sqft
Bathrooms Total
4
Bedrooms Above Ground
4
Bedrooms Total
5
Amenities
Park, Playground, Recreation Nearby
Exterior Finish
Concrete, Stone, Stucco
Fireplace Present
Yes
Basement Type
Full (Finished)
Basement Features
Separate entrance, Suite
Building Heating Type
Other, Forced air
Heating Fuel
Natural gas
Building Cooling Type
None

Location

Learn more about this property
Listing provided by:
RE/MAX House of Real Estate
MLS® number:
A2282441
Agent:
Jim R. Doucette
*Indicates required field
Name is required
Email is required
Please enter a valid phone number (e.g., 416-111-1111).

Street Spotlight - For sale