131 Greenwich Heath Nw, Calgary, Alberta T3B 6P2

Listed for:
$1,950,000
6 beds
6 baths
Listed 19 days ago
House for rent: 131 Greenwich Heath Nw, Calgary, Alberta T3B 6P2

View all 7 photos

About

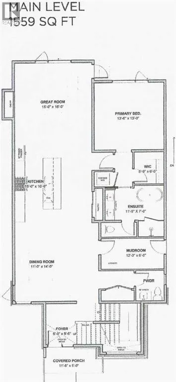
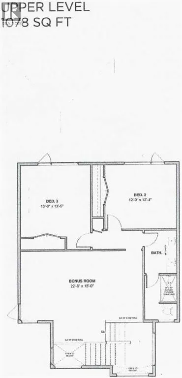
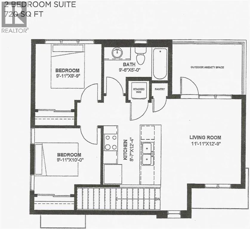
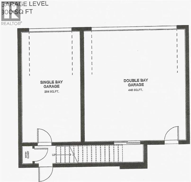
MULTI-GENERATIONAL LIVING/INCOME POTENTIAL! The Nolita II offers 2,637ft2 of well-appointed living space. The main floor features a master bedroom with ensuite, an open concept living area that includes a great room, kitchen, and living room, as well as a generous mudroom. The upper floor includes two additional bedrooms, the main bath, and a spacious bonus room. The fully developed basement of this home includes a finished recreation room and full bathroom for the main house plus a complete 1-bedroom legal suite with a separate entrance. The property also includes a detached triple garage with a 2-bedroom fully finished garden suite above. (legal Suites can be redesigned to make the home 'single-family' living.)As a Custom Concepts’ Personalized Home this home offers the perfect balance of convenience and customization, allowing you to jump-start the build process by approximately six months. The initial design, permitting, foundation, and framing are already completed, so you can begin personalizing at the rough-in stage. If you're looking for a quicker build process and a faster move-in date with the added benefit of tailoring your home to your design preferences, our Personalized Homes might be the perfect choice for you.Upper Greenwich is a distinctive community nestled on the west edge of Calgary – an easy commute to downtown with quick access to the Rocky Mountains. Upper Greenwich is a lovely blend of sophisticated urban living in natural surroundings. Walking paths, sport courts, playgrounds and abundant greenspaces can be enjoyed right outside your front door. The HOA ensures upkeep of the amenities of the community and helps bring people together with seasonal celebrations and neighborhood events. Upper Greenwich is a community that is connected, active and thriving! (id:27476)

Property Highlights

MLS® Number
A2282431
Type
Single Family
Community Name
Greenwood/Greenbriar
Ownership Type
Freehold
Land Size
5060 sqft|4,051 - 7,250 sqft
Parking Space Total
3

Building

Building Type
House
Storeys
2.00
Square Footage
2637 sqft
Bathrooms Total
6
Bedrooms Above Ground
3
Bedrooms Total
6
Amenities
Park, Playground, Recreation Nearby
Exterior Finish
Composite Siding, Stone, Stucco
Fireplace Present
Yes
Basement Type
Full (Finished)
Basement Features
Separate entrance, Suite
Building Heating Type
Other
Heating Fuel
Building Cooling Type
None

Location

Learn more about this property
Listing provided by:
RE/MAX House of Real Estate
MLS® number:
A2282431
Agent:
Jim R. Doucette
*Indicates required field
Name is required
Email is required
Please enter a valid phone number (e.g., 416-111-1111).

Street Spotlight - For sale