2231 2 Avenue Nw, Calgary, Alberta T2N 0H1

Listed for:
$1,545,000
6 beds
7 baths
Listed 5 days ago
Duplex for rent: 2231 2 Avenue Nw, Calgary, Alberta T2N 0H1

View all 49 photos

About

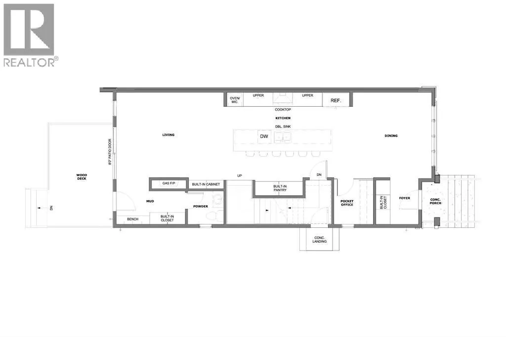
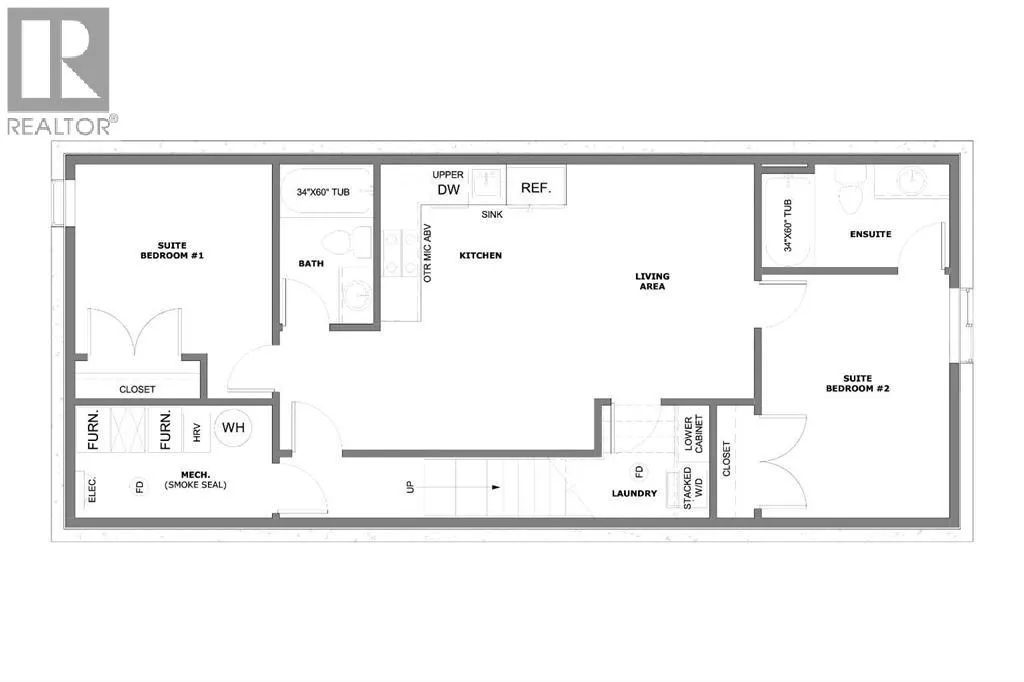
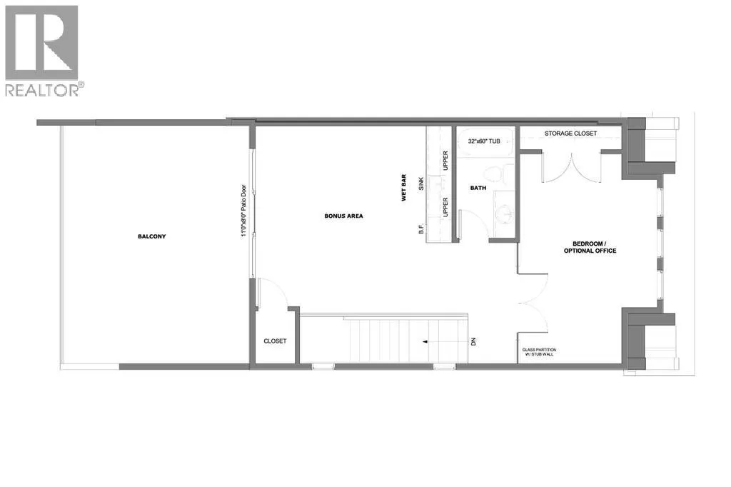
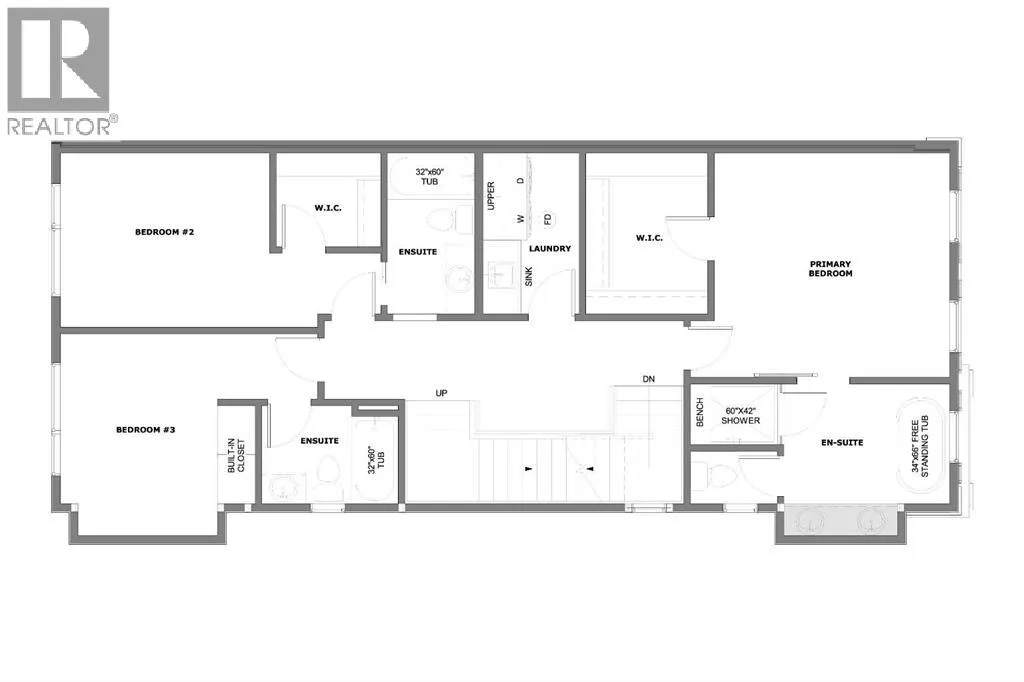
Move in Ready in June!! Modern, calm, & thoughtfully composed. This brand WEST HILLHURST semi-detached home blends clean architecture w/ warm, natural finishes across THREE LEVELS, including a loft level w/ bonus area, bright bed/office, & balcony/ DOWNTOWN VIEWS, SOUTH BACKYARD, plus a fully developed LEGAL 2-BED + 2-BATH LOWER SUITE (approved by the city). Step inside to a welcoming foyer w/ plenty of space to move around & manage shoes & coats, neatly stored in the built-in closet. A pocket office w/ a built-in desk provides a convenient spot for work-from-home tasks. The front dining area offers a quiet place for morning coffee & a lovely backdrop for family meals. The kitchen truly steals the show w/ the oversized island w/ seating for quick breakfasts, charcuterie nights, or laptop catch-ups. Cabinetry is full-height w/ lots of lower drawers and a panelled built-in fridge for a modern vibe. The working wall keeps cookware & small appliances tucked away, while quartz surfaces read clean & durable. At the back, the family room is all about comfort. The gas fireplace w/ simple built-ins gives you space for art & books, while the layout makes TV viewing effortless. Sliding patio doors to the backyard floods the room w/ light & sets up easy indoor-outdoor living. The rear mudroom is exactly where you want it, fitted w/ custom storage & a bench so shoes, bags, & dog leashes have a home. A discreet powder room completes this level.Upstairs, the PRIMARY SUITE feels like a retreat at the end of the day. You get a true walk-in closet & an ensuite that checks every box: DOUBLE VANITY, an oversized shower, & a FREESTANDING TUB that actually invites a soak. The secondary bedrooms features their own 4-pc ensuites & built-in closets giving families the flexibily they desreve. The LAUNDRY ROOM up here saves steps & keeps the main floor tidy.The loft level adds space to spread out across the home, w/ a bright & spacious bedroom or optional office w/ glass partition wal l & French door, w/ built-in storage. The bonus rec area features a modern & upscale wet bar, w/ access to the oversized balcony w/ downtown views! There’s also a full 4-pc bath on this level for convenience! Downstairs, the legal 2-BED + 2 BATH suite keeps the modern & upscale feel going w/ a full kitchen w/ quartz & stainless steel appliance package, good-sized living area, separate laundry, a primary bed w/ private ensuite bath, & a second bed w/ quick access to the main 4-pc bath.Walk to neighbourhood parks for quick dog runs & fresh air. Schools are excellent here – Hillhurst School for K-6, Queen Elizabeth Junior High & Senior High just up the road, & William Aberhart High School for advanced academics & sports programs. Weekend coffee, local bakeries, & casual dining are all within minutes, & downtown is an easy commute by car, bike, or transit. River pathways make a perfect loop for a jog or sunset stroll. It’s the right mix of community feel & city access. (id:27476)

Property Highlights

MLS® Number
A2292398
Type
Single Family
Community Name
West Hillhurst
Ownership Type
Freehold
Land Size
3245.32 sqft|0-4,050 sqft
Parking Space Total
2

Building

Building Type
Duplex
Storeys
3.00
Square Footage
2950 sqft
Bathrooms Total
7
Bedrooms Above Ground
4
Bedrooms Total
6
Amenities
Park, Playground, Schools, Shopping
Exterior Finish
Concrete
Fireplace Present
Yes
Basement Type
Full (Finished)
Basement Features
Separate entrance, Suite
Building Heating Type
Forced air
Heating Fuel
Building Cooling Type
See Remarks

Location

Learn more about this property
Listing provided by:
RE/MAX House of Real Estate
MLS® number:
A2292398
Agent:
Lisa Johnson
*Indicates required field
Name is required
Email is required
Please enter a valid phone number (e.g., 416-111-1111).

Street Spotlight - For sale