1, 808 4 Street Ne, Calgary, Alberta T2E 3T1

Listed for:
$599,000
4 beds
3 baths
Listed Today
Row / Townhouse for rent: 1, 808 4 Street Ne, Calgary, Alberta T2E 3T1

View all 40 photos

About

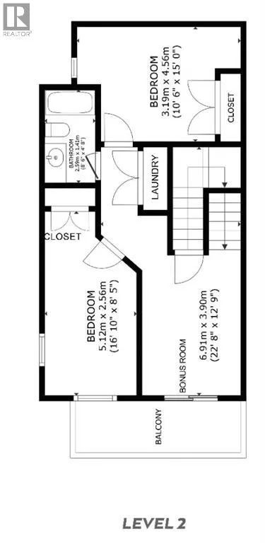
Location! Location! Location! Ideally situated within walking distance to Downtown Calgary, this property offers unbeatable convenience. Just one block away from a medical centre, cafés, restaurants, and everyday amenities, making urban living effortless and enjoyable. Designed with comfort and space in mind, the home features 9-foot ceilings from the basement through the second floor, creating an airy and open feel throughout. Both the second and third floors offer private balconies—perfect for enjoying your morning coffee with city views or unwinding in the evening with a glass of wine. This rare layout features 4 bedrooms and 3 full bathrooms above grade, ideal for growing families or flexible living arrangements. The main floor includes a versatile office/den that can easily function as a fourth bedroom, conveniently located beside a full bathroom. The spacious living room is highlighted by a cozy gas fireplace and large west-facing windows that fill the space with warm natural light. A front yard adds additional outdoor space for kids or relaxation. The second floor offers a bright and functional layout with a generous bonus room that connects to a glass-enclosed balcony, creating a perfect indoor-outdoor retreat. Two spacious bedrooms, a full bathroom, and a conveniently located laundry area complete this level. The entire third floor is dedicated to a luxurious primary retreat. Featuring vaulted ceilings, a private balcony, and a gas fireplace, this space is designed for comfort and privacy. It also includes a large walk-in closet and an impressive 6-piece ensuite with double vanity, soaker tub, and separate shower. Located in the desirable Renfrew community, this home is surrounded by fantastic amenities for families and active lifestyles. Enjoy easy access to the Renfrew Community Centre and nearby recreation facilities featuring swimming and fitness options, along with multiple parks, playgrounds, and green spaces. The area is well-served by excellen t schools, including Stanley Jones School (K–6), Colonel Macleod School (K–9, TLC program), and Crescent Heights High School (10–12), making it a great choice for families. Recent upgrades include a new hot water tank, microwave hood fan, radon mitigation system, as well as improved attic insulation and ventilation. (id:27476)

Property Highlights

MLS® Number
A2299476
Type
Single Family
Community Name
Renfrew
Maintenance Fee
251.67
Ownership Type
Condominium/Strata
Land Size
Unknown
Parking Space Total
1

Building

Building Type
Row / Townhouse
Storeys
3.00
Square Footage
1846 sqft
Bathrooms Total
3
Bedrooms Above Ground
4
Bedrooms Total
4
Amenities
Park, Playground, Recreation Nearby, Schools, Shopping
Exterior Finish
Stucco
Fireplace Present
Yes
Basement Type
Full (Unfinished)
Basement Features
Building Heating Type
Forced air
Heating Fuel
Natural gas
Building Cooling Type
None

Location

Learn more about this property
Listing provided by:
Real Broker
MLS® number:
A2299476
Agent:
Iris Zhu
*Indicates required field
Name is required
Email is required
Please enter a valid phone number (e.g., 416-111-1111).

Street Spotlight - For sale