446 Mountain Tranquility Place, Canmore, Alberta T1W 3K9

Listed for:
$1,574,900
0 beds
0 baths
Listed 137 days ago
446 Mountain Tranquility Place, Canmore, Alberta T1W 3K9

View all 26 photos

Learn more about this property
Listing provided by:
Charles
MLS® number:
A2236187
Agent:
Kevin French
*Indicates required field
Name is required
Email is required
Please enter a valid phone number (e.g., 416-111-1111).

About

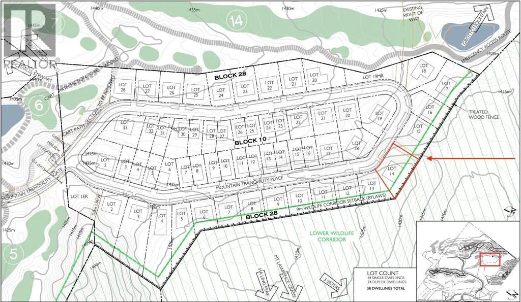
Experience unparalleled breathtaking views from this incredible south-facing homesite with direct views of the south and west. Situated on the best lot in all of Silvertip's newest luxury development, this lot offers direct views of the iconic Three Sisters in addition to the sprawling mountain range. Overlooking the valley, this property provides you with elevation, views and privacy all year long. Mountain Tranquility at Silvertip offers a prestigious homesite for you to build your custom home and this unique lot offers endless opportunities. Lot 14 backs onto a wildlife corridor, ensuring a tranquil and peaceful environment with stunning views all year long. This large homesite offers 12,630 square feet of space (0.29 acre) and is also one of a few within the development to include a private (not shared) driveway due to its exceptional frontage. Renderings of a home designed for the lot are included for inspiration but a much larger home could be built if desired. Build your dream home today and start enjoying a full time or part time mountain retreat with optimal sunshine and tranquility all year long. Surrounded by Silvertip golf course, wildlife corridors and mountain views from every angle, while being just minutes from Canmore's endless amenities, this is one of the best locations in all of Canmore. Development is well underway at Canmore's newest luxury development with roadways in place - meaning you can start building your dream home right away! (id:27476)

Property Highlights

MLS® Number
A2236187
Type
Vacant Land
Community Name
Silvertip
Ownership Type
Freehold
Land Size
0.29 ac|10,890 - 21,799 sqft (1/4 - 1/2 ac)

Building

Fireplace Present
No
Basement Type
Basement Features
Building Heating Type
Heating Fuel
Building Cooling Type

Location