22 Waterford Mews, Chestermere, Alberta T1X 3B4

Listed for:
$609,900
4 beds
3 baths
Listed 22 days ago
Duplex for rent: 22 Waterford Mews, Chestermere, Alberta T1X 3B4

View all 4 photos

About

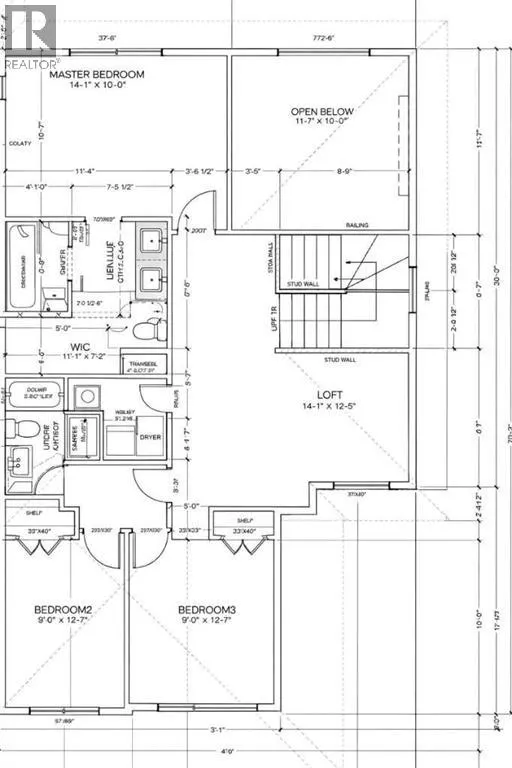
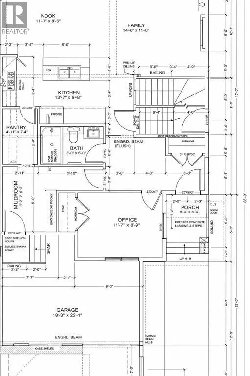
Welcome to the brand new community of Waterford! This amazing Semi-Detached Front-Drive Garage Duplex is great at a fantastic price point and includes a Bedroom and Full Bathroom on the Main floor! This 4-bedroom, 3-bathroom beautiful home is Perfect for growing families. The main level features a front porch entrance, a Full bathroom with a shower and a bedroom on the main floor with a closet, chic kitchen with a nice size pantry, a family room with an Open to Above feature and cozy nook. The Upper floor features a nice size primary bedroom with a walk-in closet and 4 piece ensuite with a total of 3 bedrooms, laundry room plus a Large Bonus Room. The basement is ready for your development and has a Separate entrance! Possession will be April 2026. Call to book your private showing today! (id:27476)

Property Highlights

MLS® Number
A2292156
Type
Single Family
Community Name
Waterford
Ownership Type
Freehold
Land Size
311.86 m2|0-4,050 sqft
Parking Space Total
4

Building

Building Type
Duplex
Storeys
2.00
Square Footage
1937 sqft
Bathrooms Total
3
Bedrooms Above Ground
4
Bedrooms Total
4
Amenities
Schools, Shopping
Fireplace Present
Yes
Basement Type
Full (Unfinished)
Basement Features
Separate entrance
Building Heating Type
Forced air
Heating Fuel
Building Cooling Type
None

Location

Learn more about this property
Listing provided by:
eXp Realty
MLS® number:
A2292156
Agent:
Paul Dhanjal
*Indicates required field
Name is required
Email is required
Please enter a valid phone number (e.g., 416-111-1111).

Street Spotlight - For sale