720049 Rr63, Clairmont, Alberta T0H 0W0

Listed for:
$22
0 beds
0 baths
Listed 335 days ago
720049 Rr63, Clairmont, Alberta T0H 0W0

View all 5 photos

About

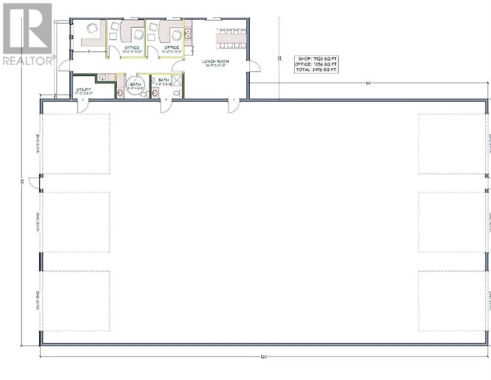
(3) 120' DRIVE THROUGH BAYS AND PLENTY OF FENCED YARD with prime frontage to get your business noticed on this very busy route. BRAND NEW build with 6) 16' W X 18 'H Overhead doors. Reception and 2 offices plus lunchroom/ Boardroom/ locker room and separate shop and office bathroom. Yard will be complete with well packed gravel and fully fenced. Need more yard, shop or something custom? Reach out . Adjoining 4.33 acres can be lease as well. Base rent $16,456 month plus Additional rent $3740 = $20,196/Month plus GST. (id:27476)

Property Highlights

MLS® Number
A2231018
Type
Industrial
Ownership Type
Freehold
Land Size
3.16 ac|2 - 4.99 acres

Building

Square Footage
8976 sqft
Fireplace Present
No
Basement Type
Basement Features
Building Heating Type
Heating Fuel
Building Cooling Type

Utilities

Water
Well
Utility Sewer
Holding Tank

Location

Learn more about this property
Listing provided by:
RE/MAX Grande Prairie
MLS® number:
A2231018
Agent:
Tim Blake
*Indicates required field
Name is required
Email is required
Please enter a valid phone number (e.g., 416-111-1111).