40 Appaloosa Crescent, Cochrane, Alberta T4C 3L6

Listed for:
$640,000
3 beds
3 baths
Listed 15 days ago
House for rent: 40 Appaloosa Crescent, Cochrane, Alberta T4C 3L6

View all 3 photos

About

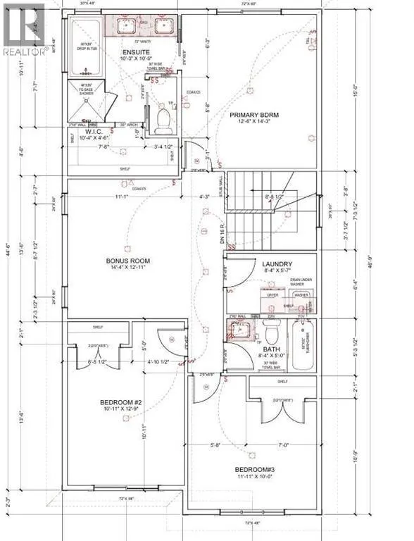
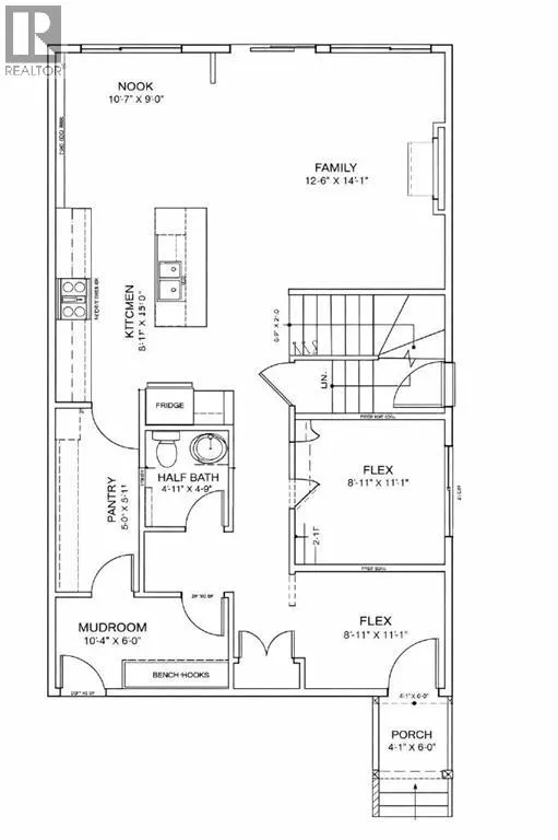
Welcome to the community of Heartland! This is the perfect home for families looking for a welcoming and cozy lifestyle. This stunning three bedroom home with an attached double car garage features tons of natural light. The Main Floor has a chic Kitchen with a great appliance package, walk-through pantry, beautiful quartz countertops, nice size island, Nook, Family Room. Upstairs has 3 large bedrooms including a Primary bedroom with 5-piece Ensuite, walk-in closet, Laundry Room and a Bonus room. This home is perfect for a growing family, and you can sleep well at night knowing you have a brand new home with Alberta new home warranty. Possession will be in end of August 2026. Call to book your private showing today! (id:27476)

Property Highlights

MLS® Number
A2294422
Type
Single Family
Community Name
Heartland
Ownership Type
Freehold
Land Size
358.14 m2|0-4,050 sqft
Parking Space Total
4

Building

Building Type
House
Storeys
2.00
Square Footage
2030 sqft
Bathrooms Total
3
Bedrooms Above Ground
3
Bedrooms Total
3
Amenities
Schools, Shopping
Fireplace Present
Yes
Basement Type
Full (Unfinished)
Basement Features
Separate entrance
Building Heating Type
Forced air
Heating Fuel
Building Cooling Type
None

Location

Learn more about this property
Listing provided by:
eXp Realty
MLS® number:
A2294422
Agent:
Paul Dhanjal
*Indicates required field
Name is required
Email is required
Please enter a valid phone number (e.g., 416-111-1111).