1947 Mccaskill Drive, Crossfield, Alberta T0M 0S0

Listed for:
$509,000
4 beds
3 baths
Listed 63 days ago
Duplex for rent: 1947 Mccaskill Drive, Crossfield, Alberta T0M 0S0

View all 15 photos

About

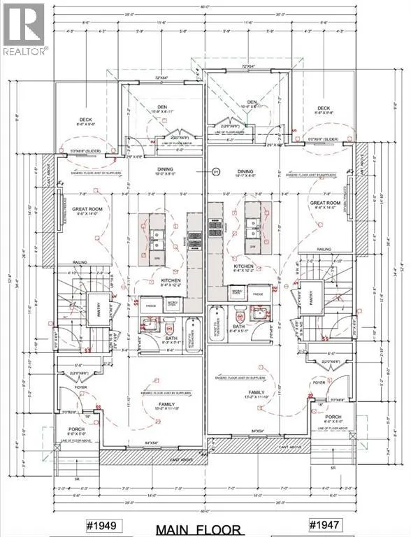
Welcome to this spacious and thoughtfully designed duplex in the charming town of Crossfield, Alberta, offering over 1,700 square feet of comfortable living space—perfect for growing families, professionals, or those seeking flexible work-from-home options.The main floor features a bright open-concept layout that seamlessly connects the living room, kitchen, and dining area, creating an ideal space for everyday living and entertaining. A separate family room provides additional space to relax or gather, while a main-floor bedroom—easily used as a home office or guest room—adds excellent versatility. A full bathroom completes the main level.Upstairs, you’ll find a well-appointed primary bedroom retreat complete with a walk-in closet and private ensuite bathroom. The upper level also includes two additional bedrooms, another full bathroom, a convenient laundry area, and a bonus room—perfect for a playroom, media space, or second living area.Located in the welcoming community of Crossfield, this duplex offers small-town charm with easy access to amenities and commuter routes. A fantastic opportunity to enjoy space, comfort, and functionality. (id:27476)

Property Highlights

MLS® Number
A2275218
Type
Single Family
Ownership Type
Freehold
Land Size
2871 sqft|0-4,050 sqft
Parking Space Total
2

Building

Building Type
Duplex
Storeys
2.00
Square Footage
1714 sqft
Bathrooms Total
3
Bedrooms Above Ground
4
Bedrooms Total
4
Amenities
Playground, Schools, Shopping
Exterior Finish
Vinyl siding
Fireplace Present
Yes
Basement Type
Full (Unfinished)
Basement Features
Separate entrance
Building Heating Type
High-Efficiency Furnace
Heating Fuel
Natural gas
Building Cooling Type
None

Location

Learn more about this property
Listing provided by:
eXp Realty
MLS® number:
A2275218
Agent:
Davinder Brar
*Indicates required field
Name is required
Email is required
Please enter a valid phone number (e.g., 416-111-1111).

Street Spotlight - For sale