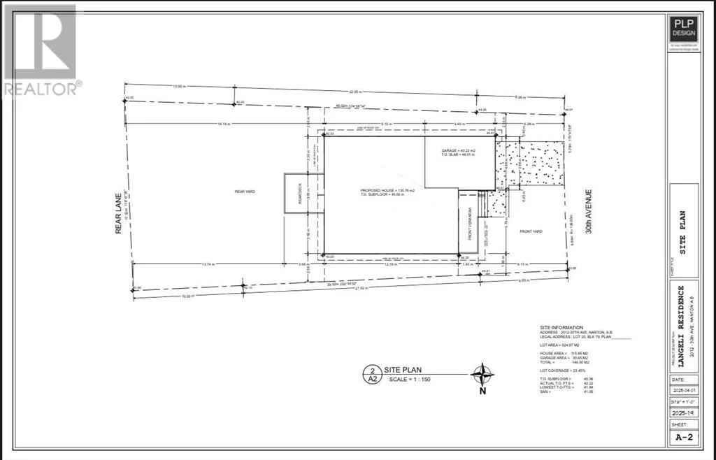
2012 30 Avenue, Nanton, Alberta T0L 1R0

Listed for:
$539,900
1 beds
2 baths
Listed 33 days ago
House for rent: 2012 30 Avenue, Nanton, Alberta T0L 1R0

View all 2 photos

Learn more about this property
Listing provided by:
Real Broker
MLS® number:
A2229263
Agent:
Tony Cusano
*Indicates required field
Name is required
Email is required
Please enter a valid phone number (e.g., 416-111-1111).

About

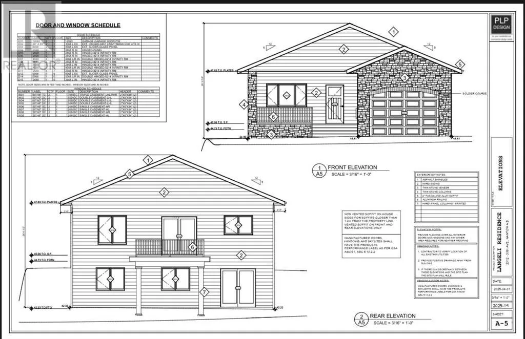
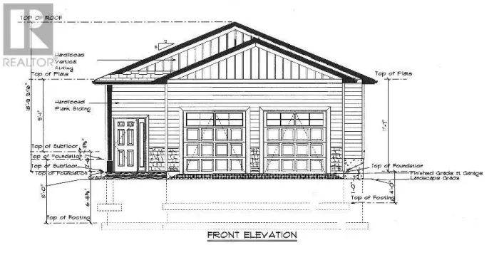
Enjoy quality craftsmanship and peaceful living in this custom-built 1-bedroom walk-out bungalow in the heart of Nanton. With 1,247 sq ft on the main floor and an unfinished walk-out basement with bathroom rough-in, this home offers future development potential. Features include a chef-style granite kitchen with stainless steel appliances, 9’ ceilings, engineered vinyl plank flooring, and a cozy gas fireplace with floor-to-ceiling stone surround. Relax outdoors on the composite front porch and rear deck with aluminum railings. Built for efficiency and longevity with Hardie siding, ICF foundation, triple-pane windows, and a finished single attached garage. New Home Warranty included. Construction has not started so there is time to review plans and customize to your liking! A rare opportunity for affordable luxury in a quiet, welcoming community! (id:27476)

Property Highlights

MLS® Number
A2229263
Type
Single Family
Ownership Type
Freehold
Land Size
6502 sqft|4,051 - 7,250 sqft
Parking Space Total
2

Building

Building Type
House
Storeys
1.00
Square Footage
1247 sqft
Bathrooms Total
2
Bedrooms Above Ground
1
Bedrooms Total
1
Exterior Finish
Stone
Fireplace Present
Yes
Basement Type
Full (Unfinished)
Basement Features
Walk out
Building Heating Type
Forced air
Heating Fuel
Building Cooling Type
None

Location