262150 Horse Creek Road, Rural Rocky View County, Alberta T4C 1A4

Listed for:
$1,949,000
6 beds
5 baths
Listed 6 days ago
House for rent: 262150 Horse Creek Road, Rural Rocky View County, Alberta T4C 1A4

View all 50 photos

Learn more about this property
Listing provided by:
RE/MAX Realty Professionals
MLS® number:
A2233607
Agent:
Dennis Shandruk
*Indicates required field
Name is required
Email is required
Please enter a valid phone number (e.g., 416-111-1111).

About

Subdivision is being applied for in the form of three 3.95 acre parcels (M/L) including the existing home. The seller is willing to sell the current property as is or the the existing home with the condition of the subdivision being approved. This is a remarkable renovated executive home currently on 19.87 acres that has been stripped to the studs. Almost everything is new including interior drywall, exterior sheeting, siding, shingles, windows, exterior and interior doors, garage concrete floor, exterior lighting, decks, railings plus a complete new water system and natural gas lines The western mountain view is incredible!! Six bedrooms with large primary bedroom featuring a large walk in closet and luxury ensuite, dream kitchen with huge center island, main floor den, games room, sauna, two fireplaces, glass railings, four bathrooms plus a wash station for the fur babies. Three car garage (3 doors) with epoxy finished floors. The list goes on and on. The property is located mere seconds north of Cochrane city limits and the new 130 acre sports park. Excellent sub division potential for 3 additional lots. According to Rocky View County up to 8 horses are allowed on this property. The is nothing left to do but move in!! (id:27476)

Property Highlights

MLS® Number
A2233607
Type
Single Family
Ownership Type
Freehold
Land Size
19.87 ac|10 - 49 acres
Parking Space Total
10

Building

Building Type
House
Storeys
2.00
Square Footage
2929 sqft
Bathrooms Total
5
Bedrooms Above Ground
4
Bedrooms Total
6
Exterior Finish
Vinyl siding
Fireplace Present
Yes
Basement Type
Full (Finished)
Basement Features
Building Heating Type
Forced air
Heating Fuel
Building Cooling Type
None

Utilities

Water
Well, Cistern
Utility Sewer
Holding Tank

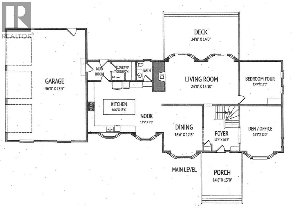
Room Layout

Primary Bedroom
Second level
18.00 Ft x 13.42 Ft
Bedroom
Second level
15.25 Ft x 9.83 Ft
Bedroom
Second level
15.25 Ft x 11.50 Ft
5pc Bathroom
Second level
Measurements not available
4pc Bathroom
Second level
Measurements not available
Family room
Lower level
19.42 Ft x 13.67 Ft
Recreational, Games room
Lower level
27.67 Ft x 8.17 Ft
Bedroom
Lower level
13.67 Ft x 13.08 Ft
Bedroom
Lower level
119.75 Ft x 9.83 Ft
Furnace
Lower level
15.58 Ft x 13.75 Ft
Sauna
Lower level
8.25 Ft x 6.08 Ft
4pc Bathroom
Lower level
Measurements not available
3pc Bathroom
Lower level
Measurements not available
Kitchen
Main level
16.50 Ft x 15.50 Ft
Other
Main level
11.17 Ft x 12.50 Ft
Dining room
Main level
16.50 Ft x 12.50 Ft
Family room
Main level
23.67 Ft x 13.83 Ft
Den
Main level
16.50 Ft x 13.42 Ft
Bedroom
Main level
13.75 Ft x 13.42 Ft
Foyer
Main level
11.33 Ft x 10.17 Ft
2pc Bathroom
Main level
Measurements not available

Location