5230 44 Avenue, Spirit River, Alberta T0H 3G0

Listed for:
$999,900
0 beds
0 baths
Listed 118 days ago
Multi-Family for rent: 5230 44 Avenue, Spirit River, Alberta T0H 3G0

View all 50 photos

About

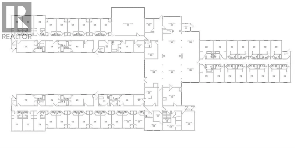
Pleasant View Lodge in Spirit River, Alberta, presents an exceptional opportunity for investors and assisted-living operators to acquire a well-maintained, institutional-quality 42-suite care facility situated on 2.32 acres of R4 High Density Residential land. This 22,177 sq. ft. building has been consistently upgraded, including newer boilers (2015), hot water tanks (2022/2023), modern double-glazed vinyl windows, and a torch-on roof completed in 2018. Now vacant and ready for redevelopment or immediate occupancy, the property features private bathrooms in every suite—26 with full showers or tubs—plus two staff washrooms, two assisted bathing rooms, a commercial kitchen with industrial equipment, extensive common areas, commercial laundry, office space, a dedicated hair salon, and a 26’x40’ maintenance shop. With ample parking, mature trees, and a peaceful setting near parks and services, and located just 50 minutes from Grande Prairie with direct access to essential amenities, this property offers exceptional potential for seniors housing, specialized care, workforce accommodation, or multi-suite residential conversion. (id:27476)

Property Highlights

MLS® Number
A2273553
Type
Multi-family
Land Size
2.32 ac|2 - 4.99 acres
Parking Space Total
20

Building

Building Type
Multi-Family
Square Footage
22177 sqft
Exterior Finish
Concrete
Fireplace Present
No
Basement Type
Basement Features
Building Heating Type
Heating Fuel
Building Cooling Type

Location

Learn more about this property
Listing provided by:
Sutton Group Grande Prairie Professionals
MLS® number:
A2273553
Agent:
Daniel Cram
*Indicates required field
Name is required
Email is required
Please enter a valid phone number (e.g., 416-111-1111).