1, 5230 44 Avenue, Spirit River, Alberta T0H 3G0

Listed for:
$999,900
0 beds
0 baths
Listed 118 days ago
Apartment for rent: 1, 5230 44 Avenue, Spirit River, Alberta T0H 3G0

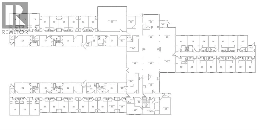
View all 47 photos

About

Pleasant View Lodge in Spirit River, Alberta offers multifamily investors a rare chance to acquire a large-scale residential complex with exceptional repositioning potential. Set on 2.32 acres of R4 High Density Residential land, this 42-suite, 22,177 sq. ft. facility has strong underlying infrastructure and has benefited from meaningful capital upgrades, including newer boilers (2015), hot water tanks (2022/2023), double-glazed vinyl windows, and a torch-on roof installed in 2018. The building is currently vacant, providing a clean slate for redevelopment—ideal for conversion to rental apartments, staff housing, seniors housing, or specialized accommodation. Each suite includes a private bathroom, with 26 featuring full tubs or showers. The property also includes supporting amenities such as two staff washrooms, two assisted bathing rooms, a fully equipped commercial kitchen, industrial-grade refrigeration, generous common areas, commercial laundry, office space, a dedicated hair salon, and a 26’ x 40’ maintenance shop. Situated in a quiet, park-adjacent setting with ample parking, the property is just 50 minutes from Grande Prairie and steps from local services, retail, and the Central Peace Health Centre. With strong demand for quality rental housing and workforce accommodation in Northern Alberta, Pleasant View Lodge represents a compelling opportunity to acquire a high-capacity structure with multiple income-generating pathways and significant value-add potential. (id:27476)

Property Highlights

MLS® Number
A2273788
Type
Multi-family
Ownership Type
Freehold
Land Size
Unknown
Parking Space Total
20

Building

Building Type
Apartment
Storeys
1.00
Square Footage
22177 sqft
Fireplace Present
No
Basement Type
Basement Features
Building Heating Type
Heating Fuel
Building Cooling Type

Location

Learn more about this property
Listing provided by:
Sutton Group Grande Prairie Professionals
MLS® number:
A2273788
Agent:
Daniel Cram
*Indicates required field
Name is required
Email is required
Please enter a valid phone number (e.g., 416-111-1111).