725 5 Street Sw, Sundre, Alberta T0M 1X0

Listed for:
$644,900
0 beds
0 baths
Listed 14 days ago
725 5 Street Sw, Sundre, Alberta T0M 1X0

View all 8 photos

Learn more about this property
Listing provided by:
CIR Realty
MLS® number:
A2195783
Agent:
Stacey Kelly
*Indicates required field
Name is required
Email is required
Please enter a valid phone number (e.g., 416-111-1111).

About

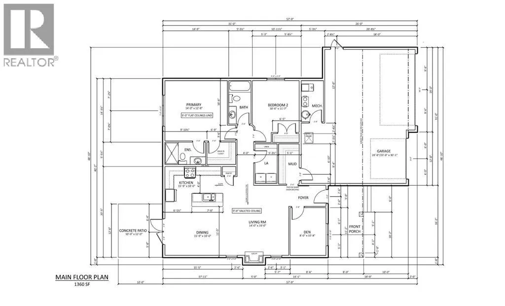
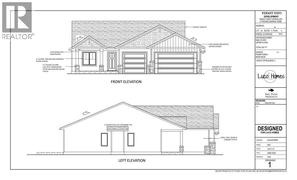
A Beautifully Designed 1,360 sq. ft. Custom-Built Bungalow that Blends Style, Comfort, and Functionality. This Thoughtfully Laid-Out Home Features Two Spacious Bedrooms Plus a Versatile Den, Ideal for a Home Office or Guest Room. The Bright and Airy Open-Concept Kitchen, Dining, and Living Space is Filled with Natural Light, Creating a Warm and Inviting Atmosphere. A Stunning Gas Fireplace, Serves as the Elegant Focal Point of the Living Room. The Modern Kitchen Showcases Sleek Cabinetry, Quartz Countertops, and a Walk-in Pantry for Added Convenience. The Luxurious Primary Suite Offers a Private Retreat with a Generous Walk-in Closet and a Spa-inspired 3-piece ensuite. Outdoor Living is Truly Special, With a Private Rear Patio that’s Perfect for Summer Entertaining. Completing this Exceptional Home is a Rare Triple Attached Garage, Providing Ample Space for Vehicles, Storage, or a Workshop. Wrapped in Durable Engineered Wood Siding, This Home Provides Quality Craftsmanship with Timeless Curb Appeal — An Ideal Choice for Those Seeking a Refined and Practical Bungalow Lifestyle. (id:27476)

Property Highlights

MLS® Number
A2195783
Type
Vacant Land
Ownership Type
Freehold
Land Size
6782 sqft|4,051 - 7,250 sqft

Building

Fireplace Present
No
Basement Type
Basement Features
Building Heating Type
Heating Fuel
Building Cooling Type

Location