308 4888 Brentwood Drive, Burnaby, British Columbia V5C 0C6

Listed for:
$699,000
2 beds
2 baths
Listed 104 days ago
Apartment for rent: 308 4888 Brentwood Drive, Burnaby, British Columbia V5C 0C6

View all 18 photos

About

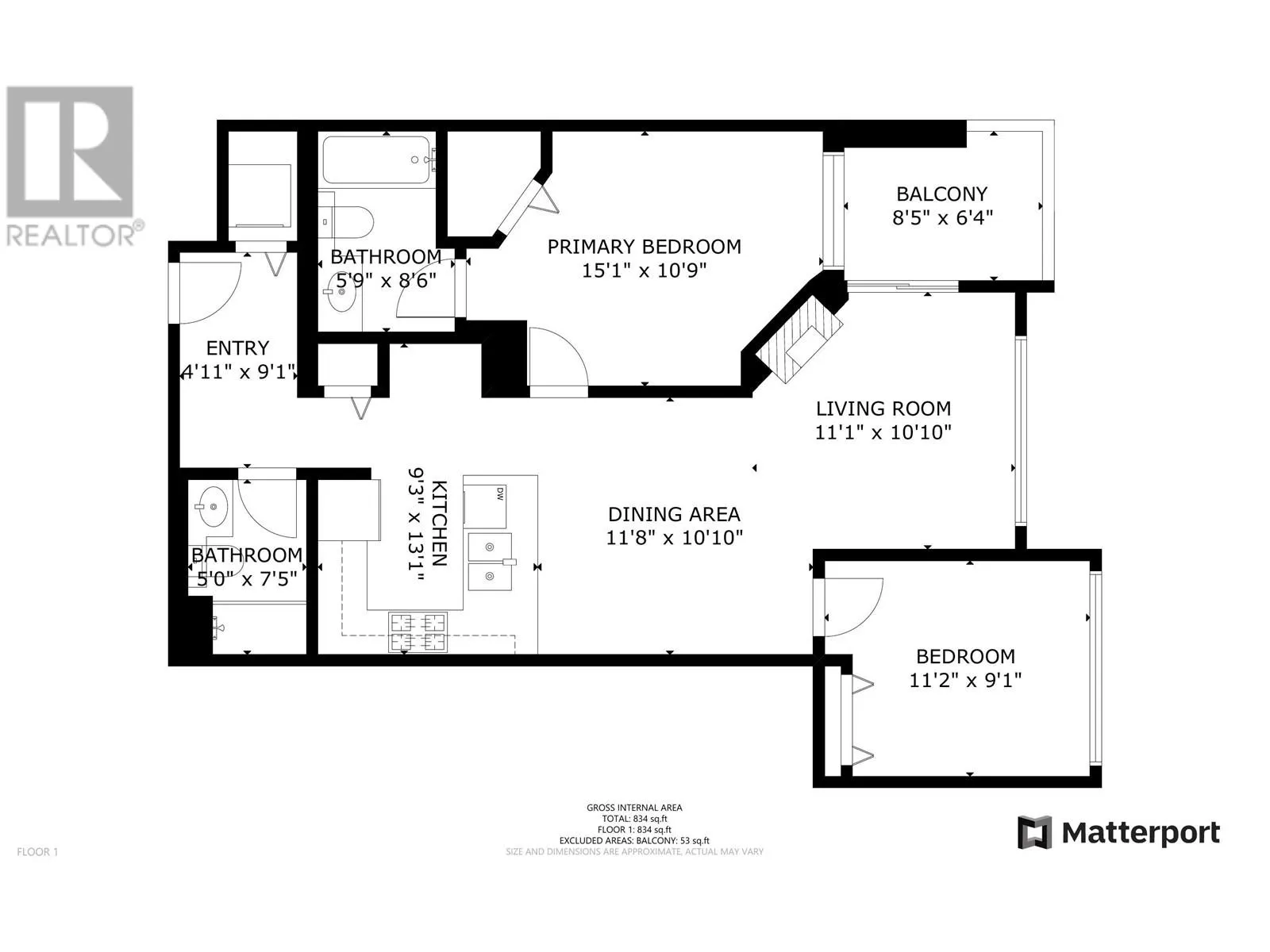
Welcome to Fitzgerald by Ledingham McAllister and well-maintained concrete building. The unit comes with two bedroom and two bath with open layout concept, gas stove, stainless steel appliances, cozy gas fireplace, TWO PARKING STALLS and locker. Enjoy the building amenities which includes fitness center, hot tub and party room. Conveniently located and steps away from Amazing Brentwood where you find lot of dining options, shopping, entertainment and Brentwood sky train station. (id:27476)

Property Highlights

MLS® Number
R3019726
Type
Single Family
Maintenance Fee
457.88
Ownership Type
Strata
Parking Space Total
2

Building

Building Type
Apartment
Square Footage
834 sqft
Bathrooms Total
2
Bedrooms Total
2
Amenities
Exercise Centre, Laundry - In Suite Shopping
Fireplace Present
No
Basement Type
Basement Features
Building Heating Type
Baseboard heaters
Heating Fuel
Electric
Building Cooling Type

Location

Learn more about this property
Listing provided by:
Grand Central Realty
MLS® number:
R3019726
Agent:
Virginia Cacayan
*Indicates required field
Name is required
Email is required
Please enter a valid phone number (e.g., 416-111-1111).

Street Spotlight - For sale