1908 4650 Brentwood Boulevard, Burnaby, British Columbia V5C 0M3

Listed for:
$618,000
1 beds
1 baths
Listed 24 days ago
Apartment for rent: 1908 4650 Brentwood Boulevard, Burnaby, British Columbia V5C 0M3

View all 30 photos

About

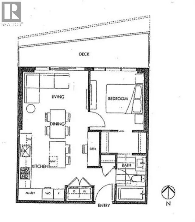
Amazing Brentwood Tower 3! This pristine condition, move-in ready, 1 bedroom 1 bath home boasts an open and functional floor plan with absolutely no wasted space. Unobstructed, north panoramic views of the city and mountains. This north-facing unit remains quiet throughout the day, and stays cool during the summer heat. Bosch appliances, Italian cabinets, and quartz countertops compliment the gourmet kitchen. There's a side by side in-suite laundry and a very practical office nook. Luxurious amenities including a 24-hour concierge, beautiful open gym, games room, play room, outdoor terrace, and much more are all attached to a world-class shopping center with ample selection of shops and restaurants. Parking P3 *RARE* Spot #1! and one Storage/Bike Locker. Easy to show! *OPEN SAT FEB.7 1230-230PM* (id:27476)

Property Highlights

MLS® Number
R3082302
Type
Single Family
Maintenance Fee
339.47
Ownership Type
Strata
Parking Space Total
1

Building

Building Type
Apartment
Square Footage
542 sqft
Bathrooms Total
1
Bedrooms Total
1
Amenities
Exercise Centre, Guest Suite, Laundry - In Suite, Recreation Centre Playground, Recreation, Shopping
Fireplace Present
No
Basement Type
Basement Features
Building Heating Type
Baseboard heaters
Heating Fuel
Electric
Building Cooling Type

Location

Learn more about this property
Listing provided by:
ABC Realty
MLS® number:
R3082302
Agent:
Emmy Pang
*Indicates required field
Name is required
Email is required
Please enter a valid phone number (e.g., 416-111-1111).

Street Spotlight - For sale