5215 6 Avenue, Delta, British Columbia V4M 1L6

Listed for:
$2,200,000
4 beds
3 baths
Listed 67 days ago
House for rent: 5215 6 Avenue, Delta, British Columbia V4M 1L6

View all 3 photos

About

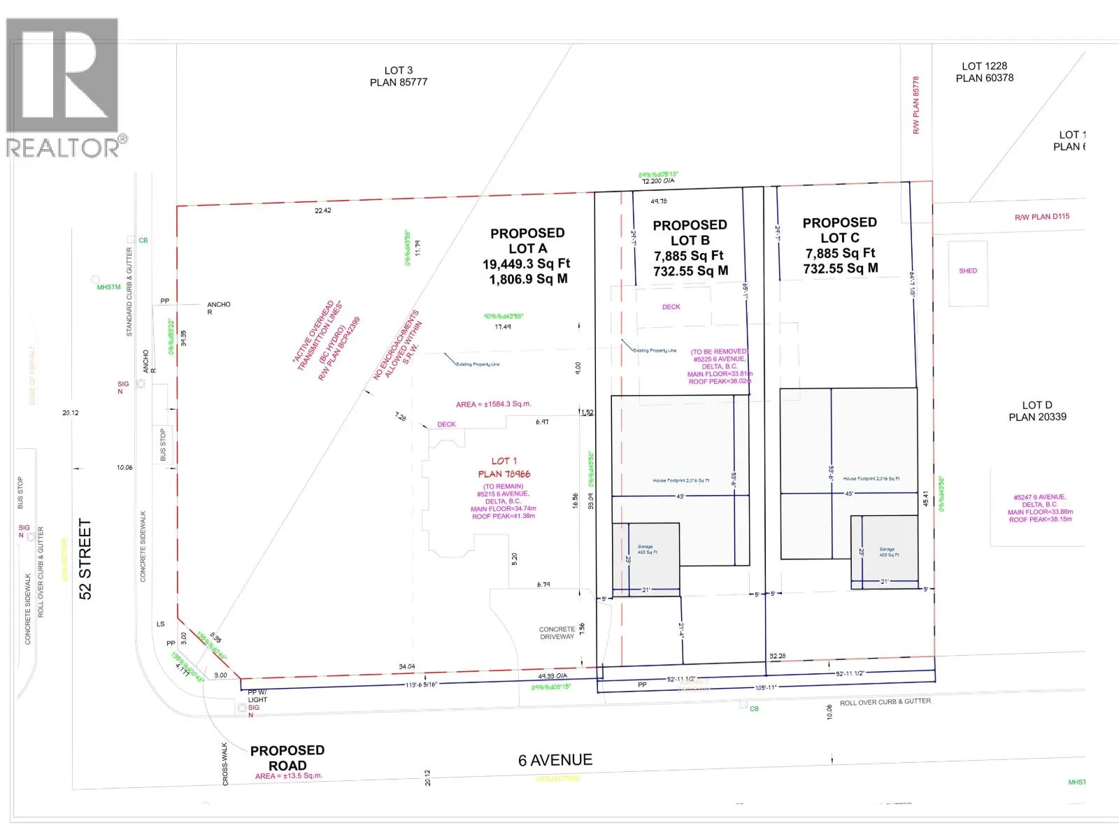
Opportunity to purchase a 6555 sq.ft.(0.15 acre)-with RS4 zoning. To be sold in conjunction with adjacent property-5225 6th Ave 28,749 sq. ft.lot (0.66 acre) MLS #R3099751. Total parcel size of 35,159 sq.ft. Potential to build homes/duplex + coach homes or mixed residential (new OCP allows up to 16 townhomes or more, or 4 units per lot-2 rectangular lots) buyer to verify with the city. Must be sold together (5215 +5225 6th Ave.) Excellent location in central Tsawwassen, close to transit, schools and amenities. Arborist report available of the mostly level lots. Home is updated, 3422 sq.ft., main floor living, four bedrooms on second level plus den/bdrm on main, large double car garage. Contact LS for further information package! (id:27476)

Property Highlights

MLS® Number
R3099747
Type
Single Family
Ownership Type
Freehold
Land Size
6555 sqft
Parking Space Total
6

Building

Building Type
House
Square Footage
3422 sqft
Bathrooms Total
3
Bedrooms Total
4
Amenities
Golf Course, Marina, Recreation, Shopping
Fireplace Present
Yes
Basement Type
Basement Features
Building Heating Type
Forced air
Heating Fuel
Natural gas
Building Cooling Type

Location

Learn more about this property
Listing provided by:
RE/MAX Westcoast
MLS® number:
R3099747
Agent:
Aileen Noguer
*Indicates required field
Name is required
Email is required
Please enter a valid phone number (e.g., 416-111-1111).