5225 6 Avenue, Delta, British Columbia V4M 4H5

Listed for:
$1,400,000
0 beds
0 baths
Listed 67 days ago
House for rent: 5225 6 Avenue, Delta, British Columbia V4M 4H5

View all 2 photos

About

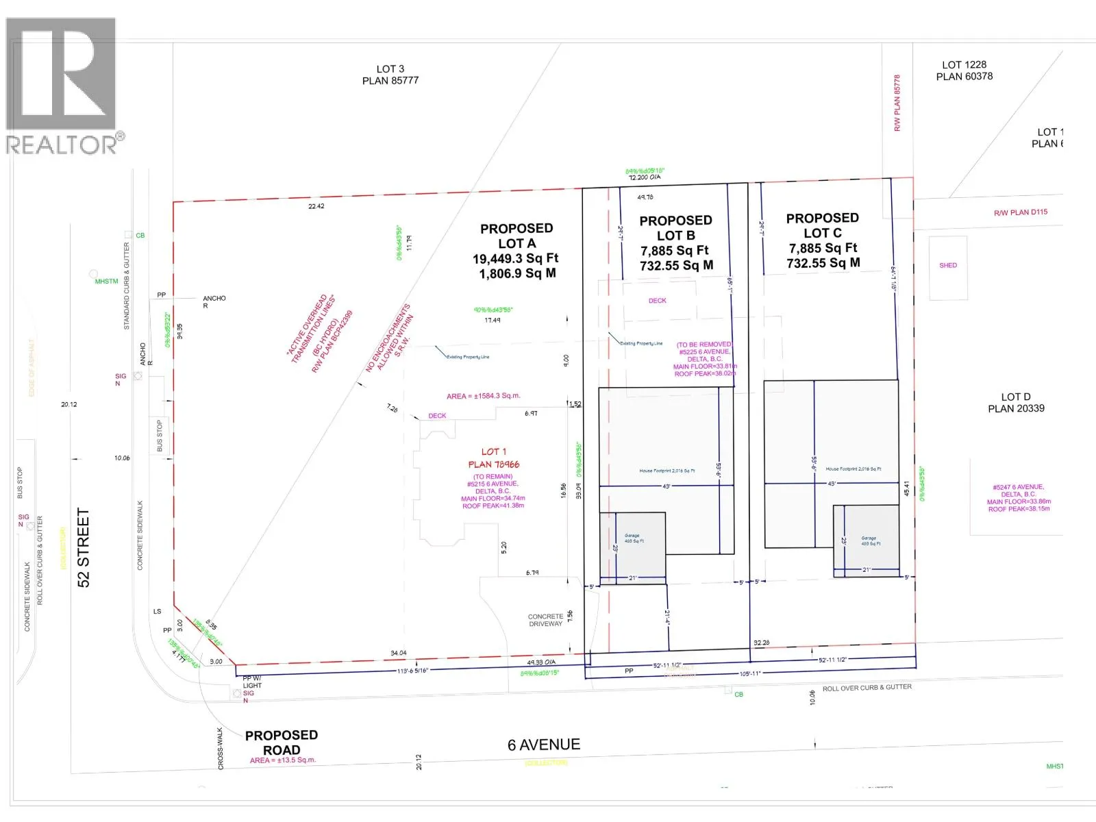
Opportunity to purchase a 28,749 sq.ft.(0.658 acre)-with RS4 zoning. MUST be sold in conjunction with adjacent property-5215 6th Ave 6550 sq. ft.lot lot(0.15 acre) MLS # .Total parcel size of 35,159 sq.ft. Potential to build homes/duplex + coach homes or mixed residential (new City of Delta OCP allows up to 16 townhomes or more, or 4 units per lot- or build your dream home-two rectangular lots) buyer to verify with the city. Must be sold together (5215 +5225 6th Ave.) Excellent location in central Tsawwassen, close to transit, schools and amenities. Arborist report available of the mostly level lots. Note ROW north/west side of property. Contact LS for detailed information package for this unique opportunity! (id:27476)

Property Highlights

MLS® Number
R3099751
Type
Single Family
Ownership Type
Freehold
Land Size
28749 sqft
Parking Space Total
6

Building

Building Type
House
Square Footage
800 sqft
Amenities
Golf Course, Marina, Recreation, Shopping
Fireplace Present
No
Basement Type
Basement Features
Building Heating Type
Heating Fuel
Building Cooling Type

Location

Learn more about this property
Listing provided by:
RE/MAX Westcoast
MLS® number:
R3099751
Agent:
Aileen Noguer
*Indicates required field
Name is required
Email is required
Please enter a valid phone number (e.g., 416-111-1111).