6000 Rockridge Rd, Duncan, British Columbia V9L 6X3

Listed for:
$609,999
3 beds
3 baths
Listed 99 days ago
Duplex for rent: 6000 Rockridge Rd, Duncan, British Columbia V9L 6X3

View all 26 photos

Learn more about this property
Listing provided by:
RE/MAX Island Properties (DU)
MLS® number:
1013157
Agent:
Helen Winfield
*Indicates required field
Name is required
Email is required
Please enter a valid phone number (e.g., 416-111-1111).

About

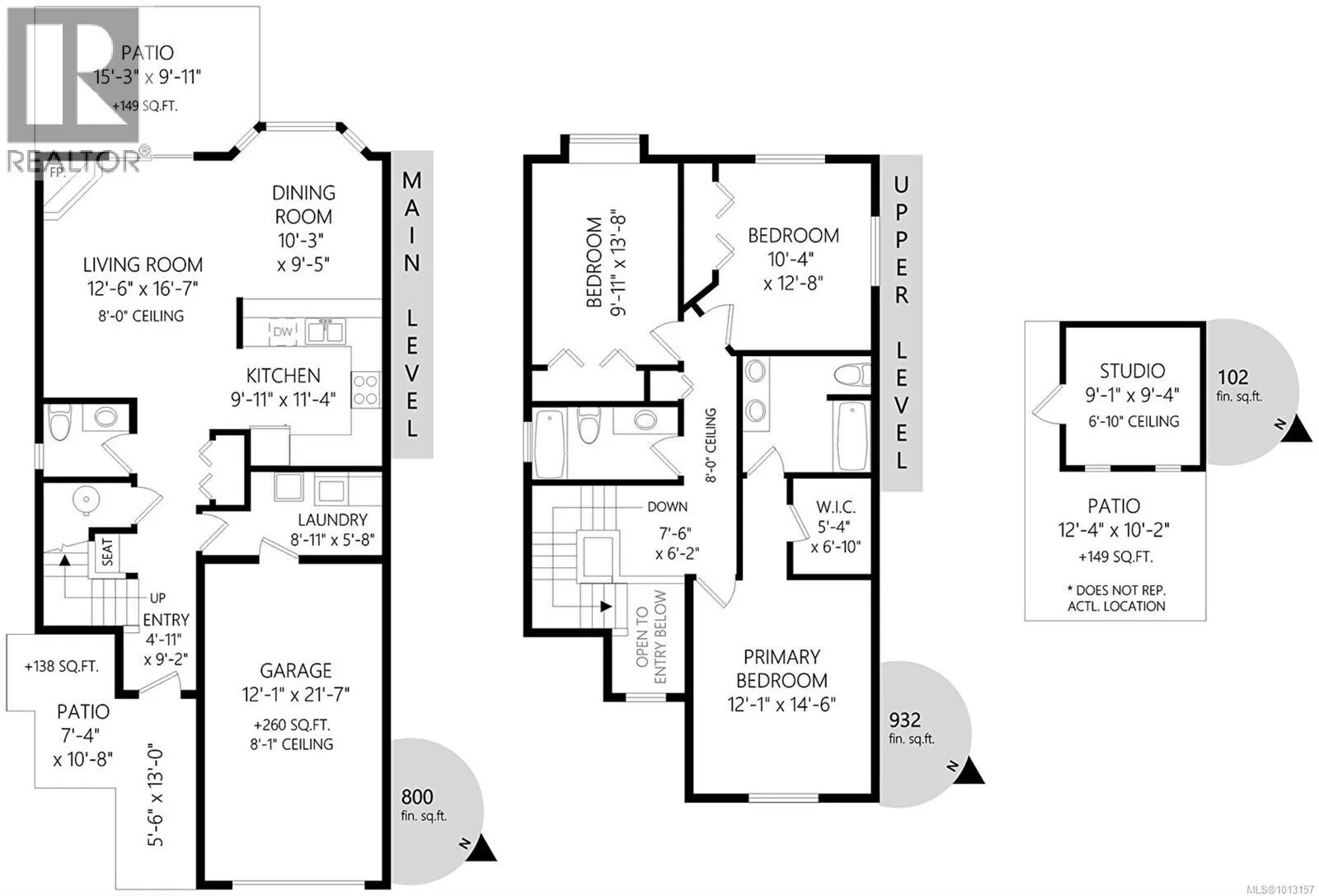
Welcome to 6000 Rockridge - located on a cul-de- sac with lots of upgrades this is a perfect home with zero strata fees and plenty of sq. footage - a 3 bed 2.5 bath family home with a bright and sunny backyard plus a studio with power & window and single car garage. This welcoming home has been professionally painted in summer 2025 along with brand new carpeting throughout the upper level. Main level has a lovely kitchen, recently updated with new stainless steel appliances- Brand new stainless steel stove in December. The dining room, living room and kitchen are open plan with a cozy propane fireplace for chilly nights. Sliding doors in the living room lead to a covered south & west facing patio. A laundry room and mud room , half bath and garage round out the lower level. The upper level has 3 large bedrooms & 2 full baths. The primary bedroom has a 4 piece ensuite and large walk in closet. A welcoming back yard with grassy areas and patio spaces to relax in. A private and peaceful backyard with views of Mt. Prevost. The bright south and west facing back yard is fully fenced - perfect for kids and pets and has a covered patio area. Path leads to a 100 sq. ft. studio with power that is perfect for office space, yoga studio or kids' play room. Another patio area has grape wines for shade and a fountain. Nice, grassy & sunny side yard too which is perfect for the kids or as additional parking or just for own private green space! Mature landscaping with heaps of grape vines & fig trees Walking distance to shopping, recreation, schools and Duncan amenities. Come view today! A perfect place to call home! (id:27476)

Property Highlights

MLS® Number
1013157
Type
Single Family
Maintenance Fee
0.00
Ownership Type
Strata
Parking Space Total
3

Building

Building Type
Duplex
Square Footage
2094 sqft
Bathrooms Total
3
Bedrooms Total
3
Fireplace Present
Yes
Basement Type
Basement Features
Building Heating Type
Baseboard heaters
Heating Fuel
Propane
Building Cooling Type
Window air conditioner

Location