5996 Rockridge Rd, Duncan, British Columbia V9L 6X3

Listed for:
$639,000
3 beds
3 baths
Listed 14 days ago
Duplex for rent: 5996 Rockridge Rd, Duncan, British Columbia V9L 6X3

View all 43 photos

Learn more about this property
Listing provided by:
Royal LePage Nanaimo Realty LD
MLS® number:
1015930
Agent:
Mary-anne Fasken
*Indicates required field
Name is required
Email is required
Please enter a valid phone number (e.g., 416-111-1111).

About

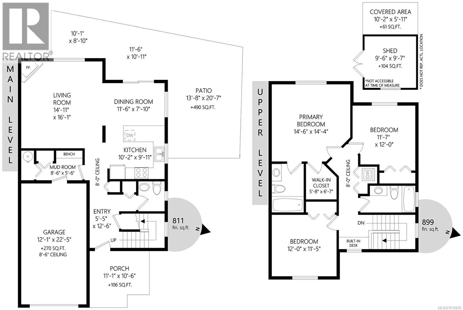
Welcome to this beautifully maintained 3-bedroom, 3-bath home located on a quiet, family-friendly street in the heart of Duncan. Perfectly situated within walking distance to grocery stores, shops, restaurants, schools, and even baseball fields, this home offers convenience and community all in one. Step inside to a bright, open-concept main floor featuring a cozy gas fireplace and a modern white kitchen—ideal for entertaining and everyday living. Upstairs, you’ll find three spacious bedrooms plus a convenient office nook—perfect for remote work or homework space. The large primary suite includes a walk-in closet and a stylish 4-piece ensuite, while two additional bedrooms share another full bath. The upper-level laundry adds everyday convenience. Enjoy easy outdoor living with a low-maintenance backyard designed for relaxation and entertaining. The large patio and covered BBQ area make hosting a breeze, while the private yard features raised garden beds, a shed perfect for storage or a creative studio, and double gates for RV or boat parking.This home is move-in ready and located in a welcoming neighbourhood with great neighbours and a peaceful atmosphere. New Roof 2025! Don’t miss your chance to own this wonderful Duncan gem! (id:27476)

Property Highlights

MLS® Number
1015930
Type
Single Family
Maintenance Fee
0.00
Ownership Type
Strata
Parking Space Total
4

Building

Building Type
Duplex
Square Footage
1980 sqft
Bathrooms Total
3
Bedrooms Total
3
Fireplace Present
Yes
Basement Type
Basement Features
Building Heating Type
Baseboard heaters
Heating Fuel
Building Cooling Type
None

Location