3935 Eagle Bay Rd. Road Unit# 1, Eagle Bay, British Columbia V0E 1T0

Listed for:
$471,500
2 beds
3 baths
Listed 150 days ago
Row / Townhouse for rent: 3935 Eagle Bay Rd. Road Unit# 1, Eagle Bay, British Columbia V0E 1T0

View all 68 photos

About

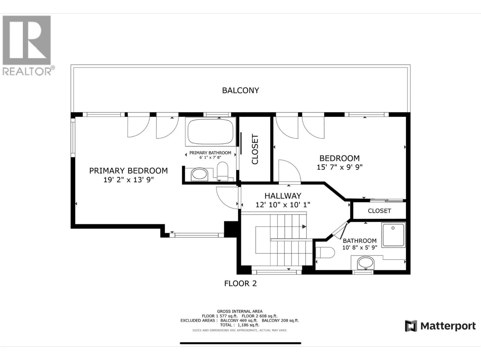
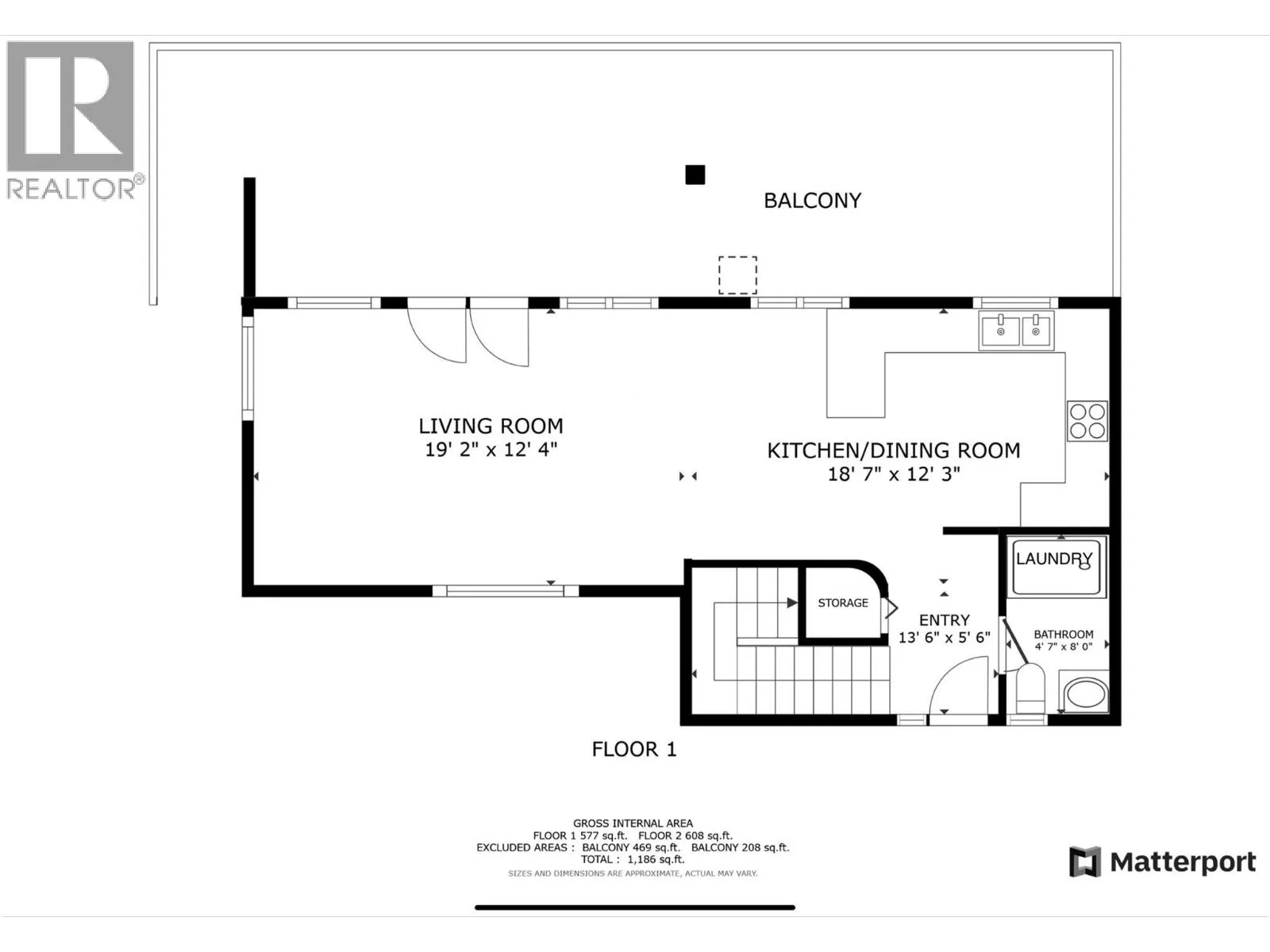
Eagle Bay Landing has been pumping out Good Times since 1995! Executive waterfront penthouse boasting an east-west floor plan, fresh and cooling flow-through breezes with windows on 3 sides.All bedrooms and living areas offer panoramic lake views. With two floors and double the balcony space (72 ft. combined), outdoor living space adds over 700 sq.o outdoor living. This home is encompassed with super natural beauty and direct access to family recreation on Shuswap lake. This rare offering gets you the best unit in the building by far. Strata fees include management of three hundred feet of waterfront, three large docks, sewer (community Septic) and water, a delightful community garden area, fire pit and boat trailer parking on a separate lot. The Buoy is yours to own privately and maintain. Recently (3.5 yrs) upgraded sewer system has been bought ‘n paid for. Year round occupancy permitted too. Short Term Rentals subject to Municipal Permit. Click on the Virtual Tour. All measurements are approx and taken from Matterport camera and should be verified. (38546329) (id:27476)

Property Highlights

MLS® Number
10364349
Type
Single Family
Community Name
Eagle Bay Landing
Maintenance Fee
777.00
Ownership Type
Strata
Land Size
under 1 acre
Parking Space Total
1

Building

Building Type
Row / Townhouse
Storeys
2.00
Square Footage
1280 sqft
Bathrooms Total
3
Bedrooms Total
2
Exterior Finish
Stucco
Fireplace Present
No
Basement Type
Basement Features
Building Heating Type
Baseboard heaters
Heating Fuel
Building Cooling Type

Utilities

Water
Lake/River Water Intake
Utility Sewer
Septic tank

Room Layout

3pc Bathroom
Second level
9' x 5'7''
Bedroom
Second level
15'6'' x 9'6''
3pc Ensuite bath
Second level
7'8'' x 6'
Primary Bedroom
Second level
12'5'' x 12'9''
2pc Bathroom
Main level
5' x 5'6''
Kitchen
Main level
12' x 9'6''
Dining room
Main level
8'8'' x 12'5''
Living room
Main level
19'5'' x 12'5''

Location

Learn more about this property
Listing provided by:
Stonehaus Realty (Kelowna)
MLS® number:
10364349
Agent:
Nancy Bell
*Indicates required field
Name is required
Email is required
Please enter a valid phone number (e.g., 416-111-1111).