Bph2 1102 Esquimalt Rd, Esquimalt, British Columbia V9A 6A1

Listed for:
$1,479,900
2 beds
3 baths
Listed 33 days ago
Apartment for rent: Bph2 1102 Esquimalt Rd, Esquimalt, British Columbia V9A 6A1

View all 35 photos

Learn more about this property
Listing provided by:
Coldwell Banker Oceanside Real Estate
MLS® number:
1003192
Agent:
Mark Rice
*Indicates required field
Name is required
Email is required
Please enter a valid phone number (e.g., 416-111-1111).

About

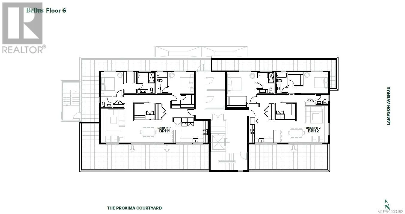
Step into a life of luxury in the south facing 2 bed + den, 3 bath Bellus penthouse unit at The Proxima. This unit truly has it all from the massive 445 sqft, sun-drenched balcony w/ straight view down to the ocean, to the soaring vaulted ceilings, oak engineered hardwood flooring, and two parking spots. Finished in our Lumen colour scheme by Spaciz Design, the kitchen offers two-toned cabinetry, quartz countertops, a large waterfall eat-in island, and top of the line stainless steel Fisher & Paykel appliances. Located in the heart of Esquimalt Village, The Proxima is perfectly positioned for a life full of adventure, experiences, & amenities w/ Saxe Point Park, local breweries, Esquimalt Market, shopping, & the Archie Browning Sports Centre just a stone’s throw away. Brought to life by GT Mann Contracting, whether relaxing on the sunny balcony, working out in the state-of-the-art gym, visiting the atrium or courtyard, residents can live life their way at The Proxima. (id:27476)

Property Highlights

MLS® Number
1003192
Type
Single Family
Community Name
The Proxima
Maintenance Fee
788.00
Ownership Type
Strata
Land Size
1475 sqft
Parking Space Total
2

Building

Building Type
Apartment
Square Footage
1920 sqft
Bathrooms Total
3
Bedrooms Total
2
Fireplace Present
Yes
Basement Type
Basement Features
Building Heating Type
Baseboard heaters, Heat Pump
Heating Fuel
Electric
Building Cooling Type
Air Conditioned

Location

Street Spotlight - For sale