727 Douglas Street, Kamloops, British Columbia V2C 3C7

Listed for:
$549,900
4 beds
2 baths
Listed 31 days ago
House for rent: 727 Douglas Street, Kamloops, British Columbia V2C 3C7

View all 34 photos

Learn more about this property
Listing provided by:
Royal LePage Westwin Realty
MLS® number:
10359857
Agent:
Ashley Nordick
*Indicates required field
Name is required
Email is required
Please enter a valid phone number (e.g., 416-111-1111).

About

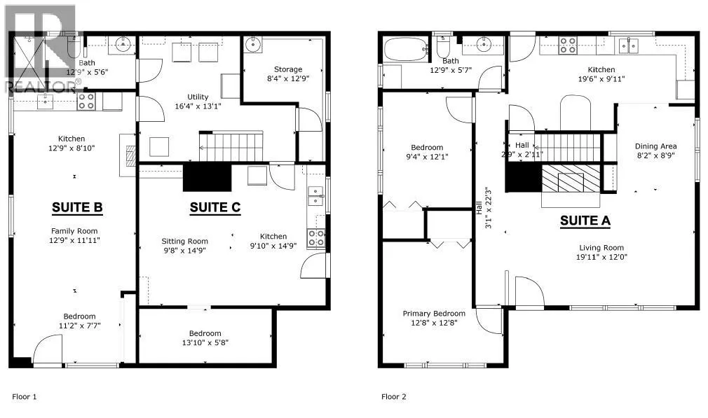
Unique downtown home, requiring some updates but consisting of three partially separate suites and walking distance to three downtown schools. The vacant upper floor has 2 generous bedrooms, 1 bath, dining room and a living room that opens up to the front yard deck where you’ll catch both the morning and evening sun as well as mountain views. The mid-century-modern charm shines through with the added features of its fireplace, built-in book shelf and built-in high top table in the kitchen. With walk-out entry on the lowest level, you’ll find two semi-separate studio suites, each offering a full kitchen, shared bathroom and shared laundry room with the suite above. An additional room on the lowest level has potential to be converted into a second bathroom which would allow for the property to boast three fully separate suites. Please check the floor plan for a detailed lay-out. Suite A is vacant. Suite B has been a long-term tenant with great reviews from the current owners. Suite C will be vacant as of September 1st as tenant has signed a lease elsewhere. With two suites vacant choose to occupy one or both as your primary residence or have all 3 rented. Hot water tank updated in 2023 If you’re looking for a home in this sought-after downtown neighbourhood south of Columbia Street, this just might be the one for you. 24 hour notice required for tenanted suites. (id:27476)

Property Highlights

MLS® Number
10359857
Type
Single Family
Ownership Type
Freehold
Land Size
0.14 ac|under 1 acre

Building

Building Type
House
Storeys
2.00
Square Footage
2104 sqft
Bathrooms Total
2
Bedrooms Total
4
Fireplace Present
No
Basement Type
Full
Basement Features
Building Heating Type
Forced air
Heating Fuel
Building Cooling Type
Window air conditioner

Utilities

Water
Municipal water
Utility Sewer
Municipal sewage system

Room Layout

Storage
Lower level
8' x 13'
Laundry room
Lower level
16' x 13'
3pc Bathroom
Main level
13' x 5'
Bedroom
Main level
9' x 12'
Primary Bedroom
Main level
12' x 12'
Dining room
Main level
8' x 9'
Kitchen
Main level
19' x 10'
Living room
Main level
20' x 12'
Full bathroom
Additional Accommodation
Measurements not available
Other
Additional Accommodation
14' x 5'
Bedroom
Additional Accommodation
19' x 15'
Bedroom
Additional Accommodation
13' x 28'

Location