2210 Qu'appelle Boulevard Unit# 18, Kamloops, British Columbia V2E 2S4

Listed for:
$639,900
4 beds
3 baths
Listed 34 days ago
Duplex for rent: 2210 Qu'appelle Boulevard Unit# 18, Kamloops, British Columbia V2E 2S4

View all 52 photos

About

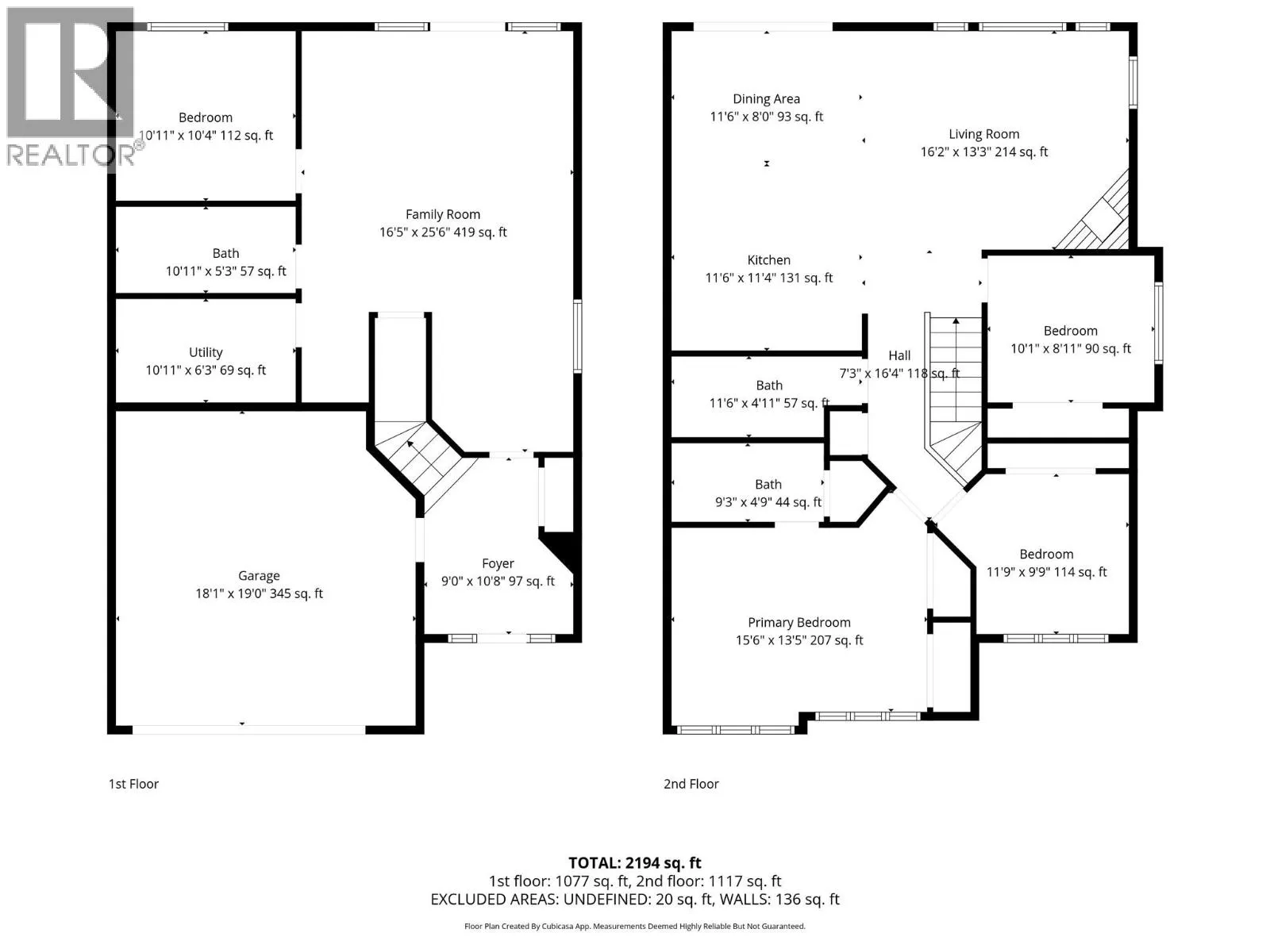
Well maintained and spacious 2 story 1/2 duplex with 4 bedrooms, 3 bathrooms, and a double car garage in Juniper Gate! The open living area of this bright end unit backs onto green space and has an uninterrupted view of the valley with a private backyard patio and covered deck. The complex is a rare and affordable bareland strata with a low fee of $200 per month helping you with borrowing power and lasting value. Thoughtful upgrades over the years include a fully finished walkout basement with the 4th bedroom, Quartz counter tops in the kitchen, solid hardwood flooring on the main and exterior low maintenance landscaping. Juniper Gate also has its own RV parking area with plenty of spots available. New H/W tank 2025, A/C 2024. Pets allowed. Reach out for more information or call your favourite Realtor today. (id:27476)

Property Highlights

MLS® Number
10377151
Type
Single Family
Community Name
Juniper Gate
Maintenance Fee
200.00
Ownership Type
Bare Land Condo/Strata
Land Size
0.06 ac|under 1 acre
Parking Space Total
2

Building

Building Type
Duplex
Storeys
2.00
Square Footage
1890 sqft
Bathrooms Total
3
Bedrooms Total
4
Fireplace Present
No
Basement Type
Basement Features
Building Heating Type
Forced air
Heating Fuel
Building Cooling Type
Central air conditioning

Utilities

Water
Municipal water
Utility Sewer
Municipal sewage system

Room Layout

Foyer
Lower level
10'10'' x 9'5''
Laundry room
Lower level
11'9'' x 5'5''
Bedroom
Lower level
11'5'' x 10'5''
Family room
Lower level
20'8'' x 16'9''
4pc Bathroom
Lower level
Measurements not available
Bedroom
Main level
10'6'' x 9'7''
Bedroom
Main level
10'4'' x 10'0''
Full ensuite bathroom
Main level
Measurements not available
4pc Bathroom
Main level
Measurements not available
Primary Bedroom
Main level
16'8'' x 12'11''
Living room
Main level
14'0'' x 13'1''
Dining room
Main level
11'0'' x 9'4''
Kitchen
Main level
12'2'' x 10'1''

Location

Learn more about this property
Listing provided by:
Brendan Shaw Real Estate Ltd.
MLS® number:
10377151
Agent:
Jeremy Hanrahan
*Indicates required field
Name is required
Email is required
Please enter a valid phone number (e.g., 416-111-1111).

Street Spotlight - For sale